Superficie
Vani
Camere
Bagni
Descrizione
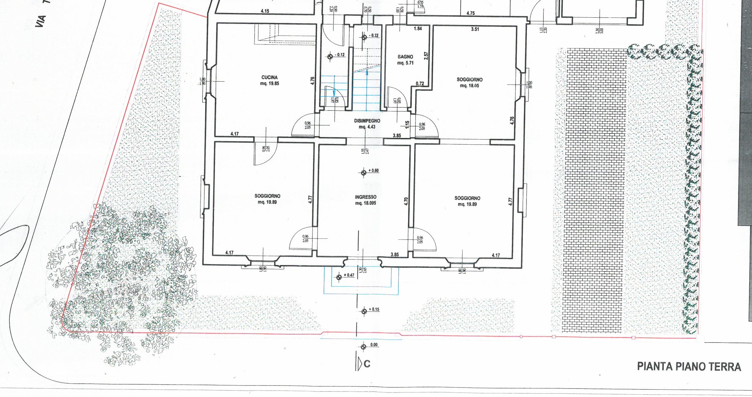
Varcando l’ingresso, sarete accolti da un triplo soggiorno luminoso e accogliente, ideale per momenti di relax o convivialità, affiancato da una cucina-pranzo con camino che diventa il fulcro caloroso della casa. Un pratico ripostiglio e un bagno completano il piano terra, arricchendo la funzionalità degli spazi.
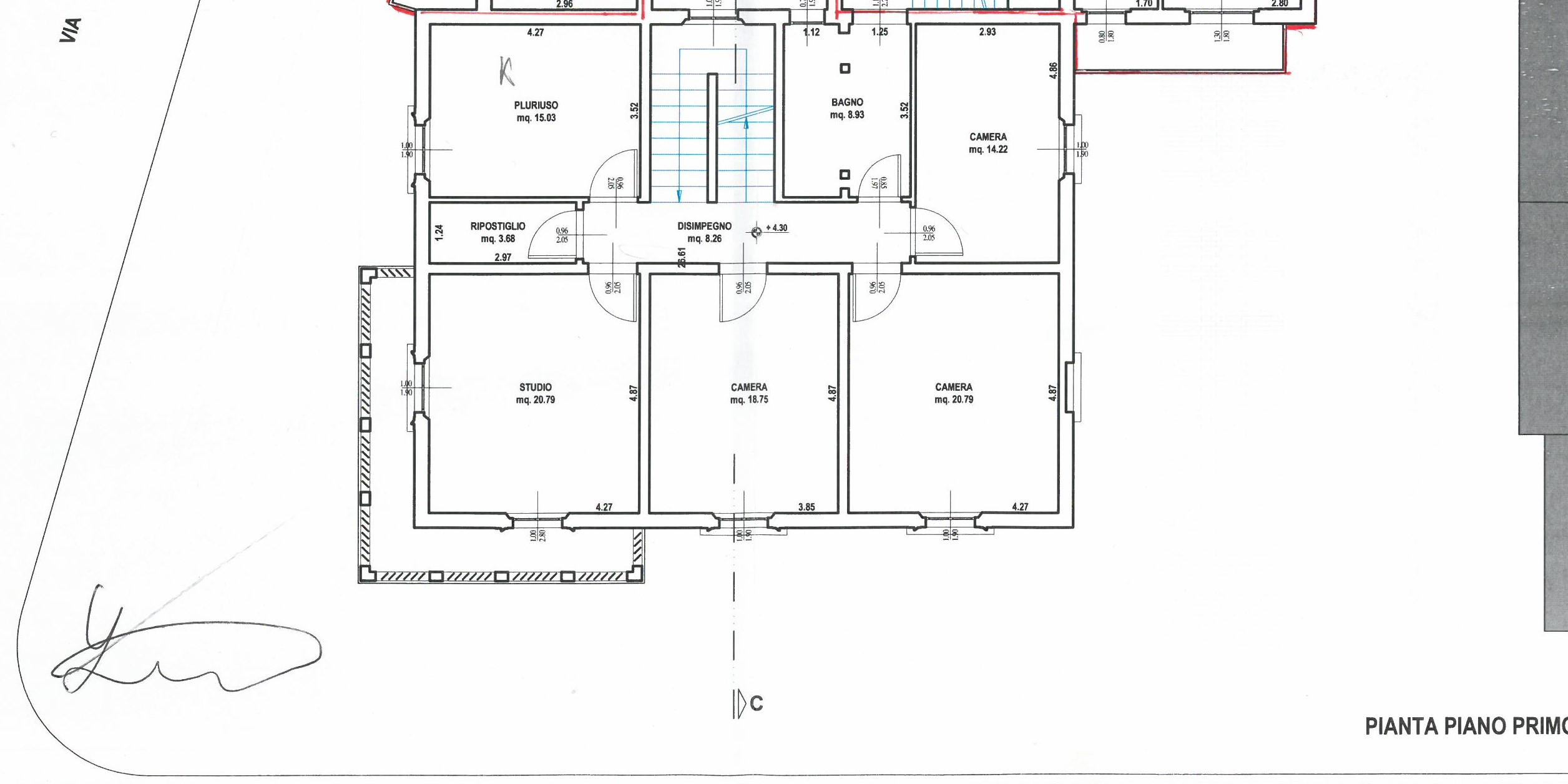
Salendo al primo piano, quattro camere spaziose, uno studio riservato e un secondo bagno vi offriranno tutto lo spazio necessario per la famiglia e le vostre passioni. La mansarda, open space con camino e servizio igienico, aggiunge un tocco unico: un ambiente versatile da trasformare in un’area hobby, un atelier o un intimo angolo di tranquillità con vista sul giardino.
Parlando di esterni, il garage di circa 30 mq garantisce comodità e sicurezza per due automobili, mentre il meraviglioso giardino privato di 250 mq circonda la villa donandole un’atmosfera di serenità e privacy, perfetta per momenti all’aria aperta o per far giocare i più piccoli in totale libertà.
Ogni dettaglio è curato con amore: dai soffitti alti agli affreschi decorativi, passando per i pavimenti tipici che conferiscono un carattere unico e distintivo. Una casa pensata per chi cerca ampi spazi, eleganza senza tempo e una posizione strategica vicina a negozi, ristoranti e attrazioni culturali.
Vivere qui significa abbracciare uno stile di vita ricco di comfort, bellezza e praticità. Non lasciatevi sfuggire questa rara opportunità di acquistare una dimora che saprà davvero accogliervi e farvi sentire a casa. Contattateci subito per scoprire come questa villa con giardino può diventare il vostro nuovo rifugio di felicità a Castelfiorentino.
L’Agenzia PETRIMMOBILIARE ci tiene a precisare che per motivi di privacy la posizione riportata su mappa in certi casi può essere soltanto indicativa della zona, così come le piantine degli immobili (quando presenti) servono esclusivamente ad illustrare e far capire la disposizione degli interni. Per tutte le precisazioni necessarie e la documentazione ufficiale, potete recarvi presso i nostri uffici a Castelfiorentino, in P.zza A. Gramsci, 50/51. Telefono 0571629610, siamo a vostra disposizione. Per identificare immediatamente l’annuncio, prendete nota del codice di riferimento che identifica in maniera univoca ogni nostra offerta. La nostra agenzia non utilizza annunci civetta, ma tutti gli annunci che vengono pubblicati sono reali, regolarmente revisionati ed aggiornati all’occorrenza.
Caratteristiche
- Prezzo
- € 350.000
- Contratto
- Vendita
- Tipologia
- Villa
- Riferimento
- 2706
- Superficie
- 300 m2
- Condizioni
- Da rivedere
- Vani
- 10
- Camere
- 5
- Bagni
- 2
- Piano
- Più livelli
- Piani totali
- 2
- Terrazzi
- 1
- Riscaldamento
- Autonomo
- Condizionatore
- Solo predisposizione
- Arredamento
- Non arredato
- Cucina
- Abitabile
- Sala pranzo
- Sì
- Sala
- Sì
- Giardino privato
- Sì (250 m2)
- Garage
- 1 (30 m2)
- Prest. Energ. Inverno
- 0
Classe energetica
Planimetrie
Contatta l'agenzia
- Visitato 1 volte
- Salvato tra i preferiti 0 volte
Salva le ricerche per ricevere notifiche per i nuovi annunci inseriti e per quelli che hanno cambiato prezzo.
Non sei ancora registrato? Registrati subito!
- PETRIMMOBILIARE
- Piazza Gramsci, 50
- Castelfiorentino (FI)
Rif. annuncio: 2706
Il proprietario preferisce non mostrare l'indirizzo esatto, l'immobile più o meno si trova qui...
- Via Timignano, 4A
- Castelfiorentino (FI)
Calcola mutuo
I risultati ottenuti sono indicativi perchè calcolati sui dati inseriti.







