Superficie
Vani
Camere
Bagni
Descrizione
Villetta di Nuova Costruzione libera su 3 lati – Comfort, Design e Giardino
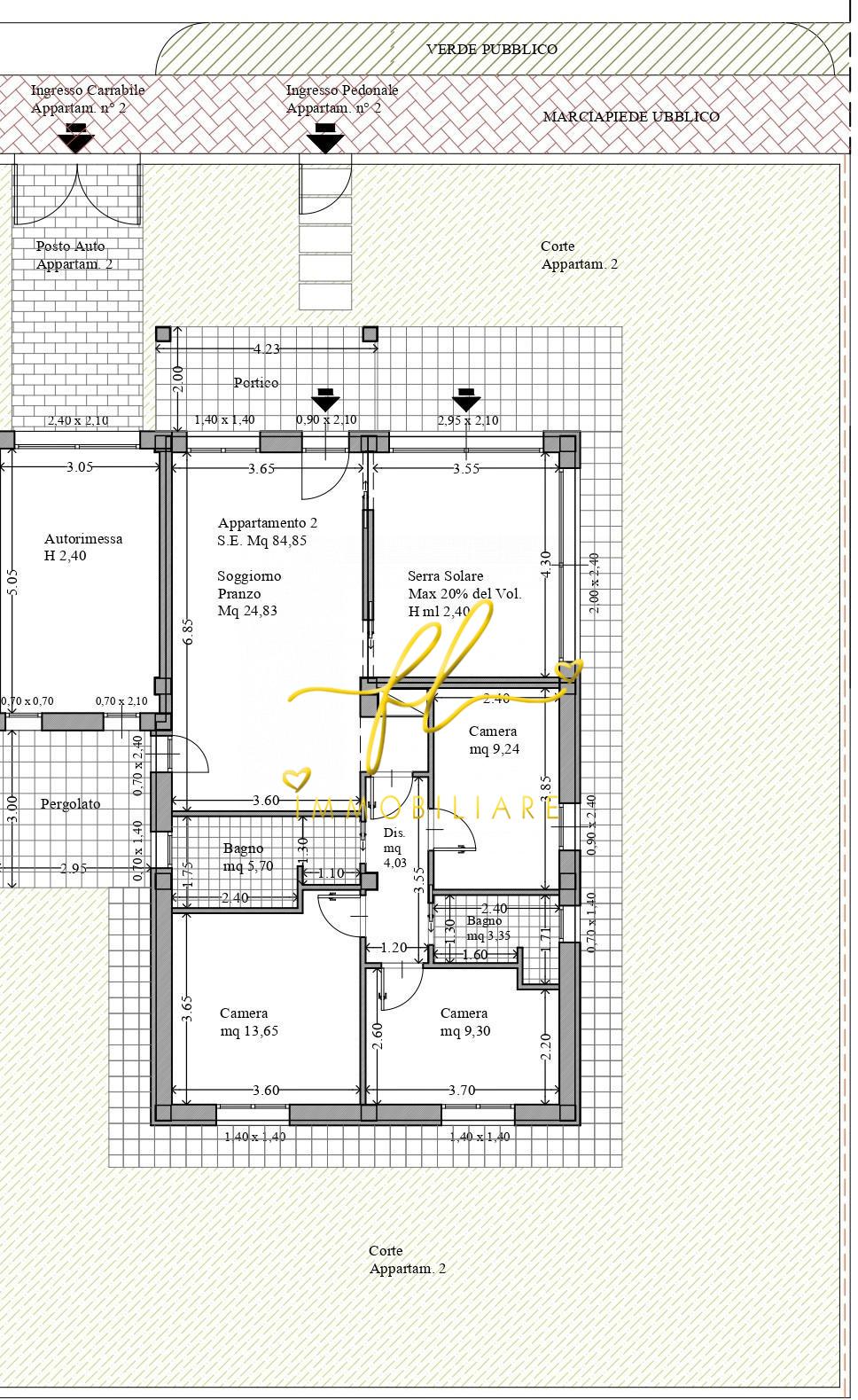
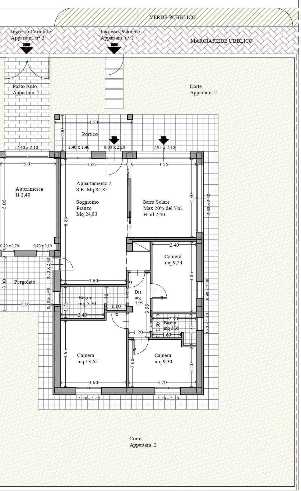
Proponiamo in vendita esclusiva una splendida villetta indipendente, situata interamente al piano terra e libera su tre lati, perfetta per chi cerca la massima comodità senza barriere architettoniche. L’immobile, di nuova realizzazione, si distingue per le finiture di pregio e efficienza energetica.
L'ingresso si apre su un'ampia e luminosa zona giorno, pensata per accogliere la famiglia in un ambiente moderno e arioso con accesso diretto all'esterno. La zona notte è composta da: 3 Camere da letto spaziose e ben esposte.
Doppi servizi moderni con materiali di qualità.
Completano la proprietà un garage e un giardino privato che circonda la casa su tre lati, l'ideale per momenti di relax all'aperto o cene estive.
Caratteristiche Principali: Libera su 3 lati (totale indipendenza); Tutto su un unico livello (Piano Terra); Ottime rifiniture personalizzabili; Giardino esclusivo e Garage incluso
Consegna primavera 2028
Rif. FL-2132MV
L’agenzia mette a disposizione dei propri clienti i seguenti servizi: Broker finanziario per Mutui e/o Prestiti, Studio tecnico per redazione di Accesso Atti Catastali, Relazione Tecnica e Attestato di Prestazione Energetica (APE)
Caratteristiche
- Prezzo
- € 397.000
- Contratto
- Vendita
- Tipologia
- Villetta a schiera angolare
- Riferimento
- FL-2132MV
- Superficie
- 85 m2
- Condizioni
- Nuovo/in costruzione
- Vani
- 4
- Camere
- 3
- Bagni
- 2
- Piano
- Piano terra
- Riscaldamento
- Autonomo
- Condizionatore
- No
- Arredamento
- Nessuno
- Cucina
- Soggiorno - cucina
- Giardino privato
- Sì
- Garage
- 1
- Prest. Energ. Inverno
- 0
Classe energetica
Contatta l'agenzia
- Visitato 7 volte
- Salvato tra i preferiti 0 volte
Salva le ricerche per ricevere notifiche per i nuovi annunci inseriti e per quelli che hanno cambiato prezzo.
Non sei ancora registrato? Registrati subito!
- FL IMMOBILIARE
- Via Monte Nevoso, 120
- Cecina (LI)
Rif. annuncio: FL-2132MV
Il proprietario preferisce non mostrare l'indirizzo esatto, l'immobile più o meno si trova qui...
- Via Raffaello Sanzio
- Palazzaccio, Cecina (LI)
Calcola mutuo
I risultati ottenuti sono indicativi perchè calcolati sui dati inseriti.


