Superficie
Vani
Camere
Bagni
Descrizione
160MQ
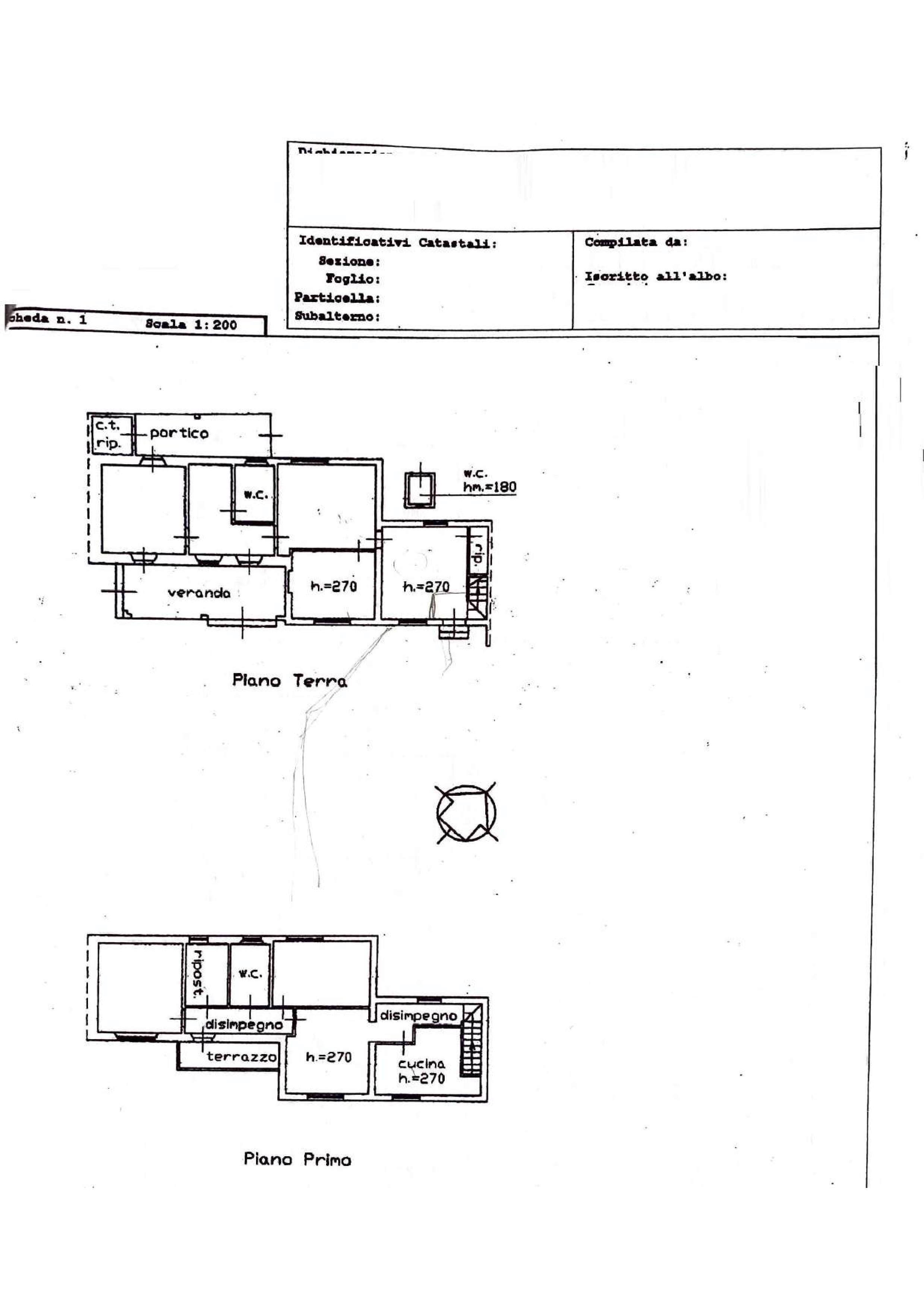
PIANO TERRA: Soggiorno - Cucina - Bagno - 2 Camere
PIANO PRIMO: Soggiorno - Cucina - Bagno - 3 camere - Balcone
GARAGE
GIARDINO
POSTO AUTO
***
Nel comune di Camaiore e più precisamente a Capezzano Pianore, proponiamo in vendita ampia casa bifamiliare libera su tre lati, caratterizzata da generose metrature e grande versatilità d’uso, ideale per più nuclei familiari o per attività ricettive come B&B.
L’immobile si sviluppa su due piani fuori terra per un totale di circa 160 mq ed è attualmente suddiviso in due unità abitative distinte, pur mantenendo un’unica intestazione catastale.
Al piano terra, l’ingresso si apre su un comodo disimpegno che distribuisce in modo funzionale gli ambienti: la zona giorno si compone di un ampio soggiorno, ben organizzato tra area relax e zona pranzo, affiancato da una cucina abitabile impreziosita dalla presenza del camino. La zona notte ospita due camere da letto. Completa questo livello un comodo bagno con doccia.
Il piano primo, accessibile sia internamente che tramite ingresso indipendente, si configura come un secondo appartamento completo: qui troviamo una cucina abitabile, un accogliente soggiorno, oltre a una zona notte composta da due camere matrimoniali e un ulteriore ambiente versatile utilizzabile come cabina armadio o studio o cameretta. A disposizione di questo piano un secondo bagno con vasca.
Completa la proprietà un giardino privato di circa 1.000 mq, soluzione ideale per chi desidera ampi spazi esterni, oltre a un garage di 20 mq in aderenza all’abitazione e posti auto.
La soluzione si distingue per la sua flessibilità distributiva, che la rende perfetta per chi è alla ricerca di una casa in grado di ospitare più famiglie mantenendo la propria indipendenza, oppure per chi desidera investire in una struttura ricettiva.
Caratteristiche
- Prezzo
- € 499.000
- Contratto
- Vendita
- Tipologia
- Villetta bifamiliare
- Riferimento
- CPZ4373
- Superficie
- 160 m2
- Condizioni
- Ottimo
- Vani
- 8
- Camere
- 5
- Bagni
- 2
- Posti auto
- 2
- Piano
- Piano rialzato
- Piani totali
- 2
- Camere doppie
- 1
- Balconi
- 1
- Riscaldamento
- Autonomo
- Condizionatore
- Solo predisposizione
- Arredamento
- Non arredato
- Cucina
- Abitabile
- Giardino privato
- Sì (1000 m2)
- Box auto
- Sì
- Prest. Energ. Inverno
- 0
Classe energetica
Distanze
- Centro
- 200 m
- Mare
- 6500 m
Planimetrie
Contatta l'agenzia
- Visitato 0 volte
- Salvato tra i preferiti 0 volte
Salva le ricerche per ricevere notifiche per i nuovi annunci inseriti e per quelli che hanno cambiato prezzo.
Non sei ancora registrato? Registrati subito!
- Case Belle Versilia
- Via Italica 9
- Camaiore (LU)
Rif. annuncio: CPZ4373
Il proprietario preferisce non mostrare l'indirizzo esatto, l'immobile più o meno si trova qui...
- Via Fillungo,
- Capezzano Pianore, Camaiore (LU)
Calcola mutuo
I risultati ottenuti sono indicativi perchè calcolati sui dati inseriti.







