Superficie
Vani
Camere
Bagni
Descrizione
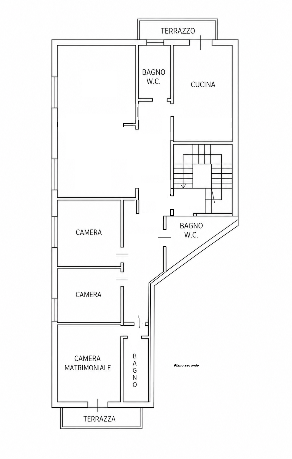
L’accesso alla palazzina avviene da vano scala condominiale e l’appartamento si presenta con una distribuzione degli spazi comoda e funzionale. La sua composizione interna: ingresso in doppio soggiorno, cucina abitabile con accesso al primo balcone, servizio igienico, disimpegno notte, tre camere (2 matrimoniali di cui una con bagno e balcone e una doppia) e bagno. A completare la proprietà, al piano seminterrato, due ampi garages, accessibili mediante rampa esterna e vano scala interno
L’immobile si presenta in ottimo stato generale, con buoni impianti, ambienti freschi e attuali, che rappresentano una soluzione ideale sia come prima abitazione per un giovane nucleo familiare sia come investimento, grazie alla posizione strategica e alla qualità degli interventi eseguiti. L’indirizzo indicato è puramente indicativo; l’esatta localizzazione verrà fornita al momento del contatto telefonico. Classe energetica: D - Richiesta € 368.000 trattabili
Caratteristiche
- Prezzo
- € 368.000 Trattabili
- Contratto
- Vendita
- Tipologia
- Appartamento
- Spese mensili
- 20
- Riferimento
- G/0143
- Superficie
- 80 m2
- Condizioni
- Ristrutturato
- Vani
- 6
- Camere
- 3
- Bagni
- 3
- Posti auto
- 2
- Piano
- 2° (Ultimo)
- Piani totali
- 2
- Camere doppie
- 1
- Balconi
- 2
- Riscaldamento
- Autonomo
- Condizionatore
- Sì
- Arredamento
- Parzialmente arredato
- Cucina
- Soggiorno - cucina
- Ripostiglio
- Sì
- Garage
- 2
- Prest. Energ. Inverno
- alta
Classe energetica
Distanze
- Centro
- 1000 m
- Centro Commerciale
- 2000 m
- Parco
- 2000 m
- Stazione FS
- 1000 m
Planimetrie
Virtual tour
Panoramiche
Video
Contatta l'agenzia
- Visitato 14 volte
- Salvato tra i preferiti 0 volte
Salva le ricerche per ricevere notifiche per i nuovi annunci inseriti e per quelli che hanno cambiato prezzo.
Non sei ancora registrato? Registrati subito!
- EMPOLI CLUB IMMOBILIARE
- Via Roma, 77
- Empoli (FI)
Rif. annuncio: G/0143
Il proprietario preferisce non mostrare l'indirizzo esatto, l'immobile più o meno si trova qui...
- Via Antonio Canova, 50053
- Empoli (FI)
Calcola mutuo
I risultati ottenuti sono indicativi perchè calcolati sui dati inseriti.







