Zona nord, Montecatini-Terme (PT)

Attico

€ 450.000 Trattabili

Superficie
130 m2
Vani
5
Camere
3
Bagni
2

Descrizione

**Attico in Vendita a Montecatini Terme – Zona Nord**

Scopri questo splendido attico situato nel cuore di Montecatini Terme, in un contesto
condominiale di alta qualità.
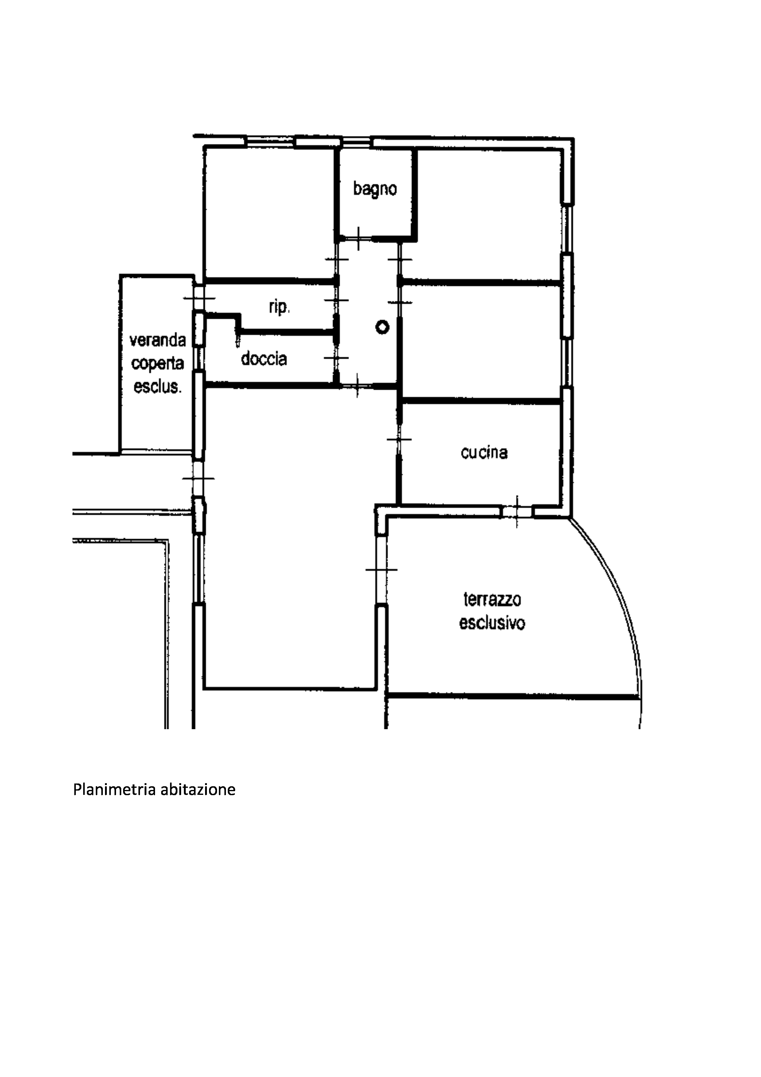
Questo immobile, recentemente realizzato nel 2005, offre un ingresso che si apre su un ampio soggiorno luminoso, perfetto per momenti di relax e convivialità. La cucina è ben attrezzata e si affaccia su una terrazza abitabile di circa 35 mq., ideale per cene all'aperto e momenti di svago.
La zona notte è composta da tre camere da letto spaziose, tutte dotate di parquet, e due bagni moderni. Un ripostiglio con accesso a una veranda/lavanderia completa la disposizione interna, rendendo questo attico non solo elegante ma anche funzionale.
Al piano seminterrato, sono disponibili due posti auto coperti nel garage condominiale e una cantina inclusa, per soddisfare tutte le esigenze di spazio.
L'immobile è dotato di aria condizionata in tutti i locali e riscaldamento a gas naturale, garantendo comfort in ogni stagione.
Con un orientamento favorevole a nord, sud ed est, la luce naturale inonda gli ambienti durante tutto il giorno.
Non perdere l'opportunità di vivere in un attico pronto per essere abitato, con finiture di alta qualità e in ottime condizioni. Contattaci per una visita!
Agenzia Immobiliare Casa Service di Alberto Bandini - Tel. 0572.767001 - Rif. 1A1 - Richiesta Euro 450.000 (tratt.le)

Caratteristiche

Prezzo
€ 450.000 Trattabili
Contratto
Vendita
Tipologia
Attico
Spese mensili
150
Riferimento
1A1
Superficie
130 m2
Condizioni
Ottimo
Vani
5
Camere
3
Bagni
2
Posti auto
2
Piano
3° (Ultimo)
Piani totali
3
Ascensore
Camere doppie
2
Terrazzi
1
Riscaldamento
Autonomo
Condizionatore
Arredamento
Arredato
Cucina
Abitabile
Ripostiglio
Prest. Energ. Inverno
media
Classe energetica
E
IPE: 187.00 kWh/m2a
  • Allarme
  • Zanzariere
  • Porta blindata

Planimetrie

Contatta l'agenzia

Casa Service Agenzia Immobiliare
Via Giovanni Bovio, 1
Montecatini-Terme (PT)

Rif. annuncio: 1A1

Visitato 5 volte
Salvato tra i preferiti 0 volte

Salva le ricerche per ricevere notifiche per i nuovi annunci inseriti e per quelli che hanno cambiato prezzo.

Non sei ancora registrato?

Casa Service Agenzia Immobiliare
Via Giovanni Bovio, 1
Montecatini-Terme (PT)
Mostra telefono
Salve, ho visto su *CASAIN24ORE* questo annuncio e vorrei ulteriori informazioni: https://www.casain24ore.it/1409274-0-vendita-attico-montecatini-terme

Rif. annuncio: 1A1

Via Enrico Magnani,
Zona nord, Montecatini-Terme (PT)
Dove si trova l'immobile?

Calcola mutuo

I risultati ottenuti sono indicativi perchè calcolati sui dati inseriti.

Quanto vale la tua casa?

Richiedi subito una valutazione della tua casa gratuita e senza impegno!

Valuta la tua casa

Casa Service Agenzia Immobiliare

Via Giovanni Bovio, 1, Montecatini-Terme (PT)
Telefono: 0572767001 - Cellulare: 3200831242
Attico in vendita a Zona nord, Montecatini-Terme (PT)

Descrizione

**Attico in Vendita a Montecatini Terme – Zona Nord** Scopri questo splendido attico situato nel cuore di Montecatini Terme, in un contesto condominiale di alta qualità. Questo immobile, recentemente realizzato nel 2005, offre un ingresso che si apre su un ampio soggiorno luminoso, perfetto per momenti di relax e convivialità. La cucina è ben attrezzata e si affaccia su una terrazza abitabile di circa 35 mq., ideale per cene all'aperto e momenti di svago. La zona notte è composta da tre camere da letto spaziose, tutte dotate di parquet, e due bagni moderni. Un ripostiglio con accesso a una veranda/lavanderia completa la disposizione interna, rendendo questo attico non solo elegante ma anche funzionale. Al piano seminterrato, sono disponibili due posti auto coperti nel garage condominiale e una cantina inclusa, per soddisfare tutte le esigenze di spazio. L'immobile è dotato di aria condizionata in tutti i locali e riscaldamento a gas naturale, garantendo comfort in ogni stagione. Con un orientamento favorevole a nord, sud ed est, la luce naturale inonda gli ambienti durante tutto il giorno. Non perdere l'opportunità di vivere in un attico pronto per essere abitato, con finiture di alta qualità e in ottime condizioni. Contattaci per una visita! Agenzia Immobiliare Casa Service di Alberto Bandini - Tel. 0572.767001 - Rif. 1A1 - Richiesta Euro 450.000 (tratt.le)

Dettagli

Prezzo
€ 450.000 Trattabili
Contratto
Vendita
Tipologia
Attico
Provincia
Pistoia
Comune
Montecatini-Terme
Quartiere
Zona nord
Superficie
130 mq
Condizioni
Ottimo
Vani
5
Camere
3
Bagni
2
Posti auto
2
Piano
3° (Ultimo)
Piani totali
3
Ascensore