Superficie
Vani
Camere
Bagni
Descrizione
Questo immobile dovresti proprio vederlo!
Tutti concordano: spazi ampi e posizione comoda sono i pregi più importanti che la casa deve avere.
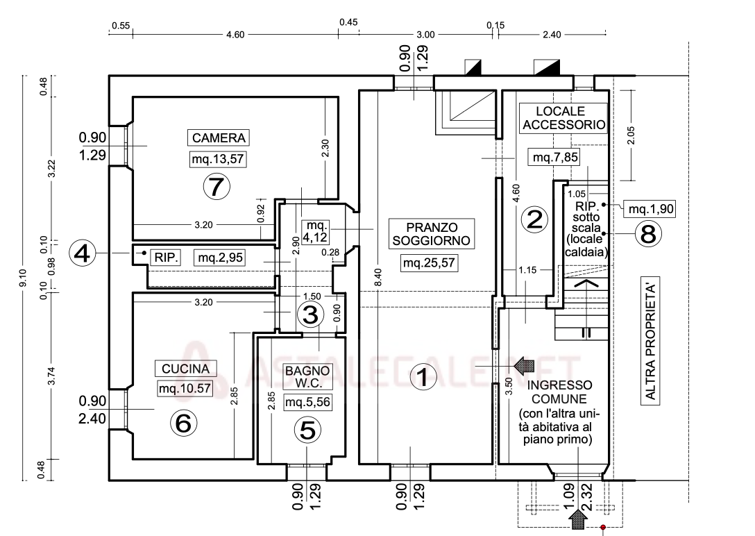
Questa che vedi è composta da 3 vani ed è ubicata a Empoli e più precisamente a Ponte a Elsa.
PIANO TERRA
CINQUE VANI
GIARDINO
LIBERO DA SUBITO
Si tratta di un appartamento degli anni '60, che aspetta solo di vivere una seconda giovinezza, grazie alla tua opera di ristrutturazione.
Rifare gli impianti migliorerà le prestazioni energetiche e i materiali moderni contribuiranno a farne una casa elegantissima.
GLI SPAZI:
Piano terra.
La superficie netta calpestabile è di circa 73 mq.
La superficie commerciale è di circa 100 mq.
Il prezzo al mq è di circa 1.250 Euro.
LE STANZE:
L’immobile è così composto:
- Giardino di circa 180 mq (staccato dalla casa)
- Salone / Zona pranzo con camino
- Cucina
- Camera matrimoniale
- Camera
- Ripostiglio
- Bagno finestrato con vasca
IL CONTESTO:
Si tratta di un tipico appartamento degli anni '60, che di quegli anni conserva ancora sia le caratteristiche strutturali che le finiture.
Si trova al piano terra di un più ampio fabbricato situato a Empoli, più precisamente a Ponte a Elsa.
ALTRI DETTAGLI:
Utenze autonome ma attualmente staccate.
Infissi in legno con vetro e persiane.
A CHI POTRÀ PIACERE?
... a chi cerca una casa da ristrutturare
... a chi cerca una casa a Empoli
... a chi cerca una casa al piano terra
... a chi cerca una casa con giardino
PUNTI DI FORZA:
1) PIANO TERRA
2) GIARDINO
3) DA RISTRUTTURARE
4) LIBERA DA SUBITO
5) A EMPOLI, PONTE A ELSA
Chiamaci subito per vederlo insieme a noi!
Euro 125.000 TRATTABILI
Rif. 9749
Caratteristiche
- Prezzo
- € 125.000 Trattabili
- Contratto
- Vendita
- Tipologia
- Appartamento
- Riferimento
- 9749
- Superficie
- 73 m2
- Condizioni
- Da ristrutturare
- Vani
- 5
- Camere
- 2
- Bagni
- 1
- Piano
- Piano terra
- Camere singole
- 1
- Riscaldamento
- Autonomo
- Condizionatore
- No
- Arredamento
- Nessuno
- Cucina
- n.d.
- Giardino privato
- Sì (180 m2)
- Prest. Energ. Inverno
- 0
Classe energetica
Planimetrie
Virtual tour
Panoramiche
Video
Contatta l'agenzia
- Visitato 6 volte
- Salvato tra i preferiti 0 volte
Salva le ricerche per ricevere notifiche per i nuovi annunci inseriti e per quelli che hanno cambiato prezzo.
Non sei ancora registrato? Registrati subito!
- STUDIO IMMOBILIARE SERENA
- Piazza Don Minzoni n° 28
- Empoli (FI)
Rif. annuncio: 9749
Il proprietario preferisce non mostrare l'indirizzo esatto, l'immobile più o meno si trova qui...
- Via delle Croci, 50053
- Osteria Bianca, Empoli (FI)
Calcola mutuo
I risultati ottenuti sono indicativi perchè calcolati sui dati inseriti.







