Fibbiana, Montelupo Fiorentino (FI)

Capannone artigianale

€ 420.000 Trattabili

Superficie
720 m2
Vani
8
Camere
n.d.
Bagni
n.d.

Descrizione

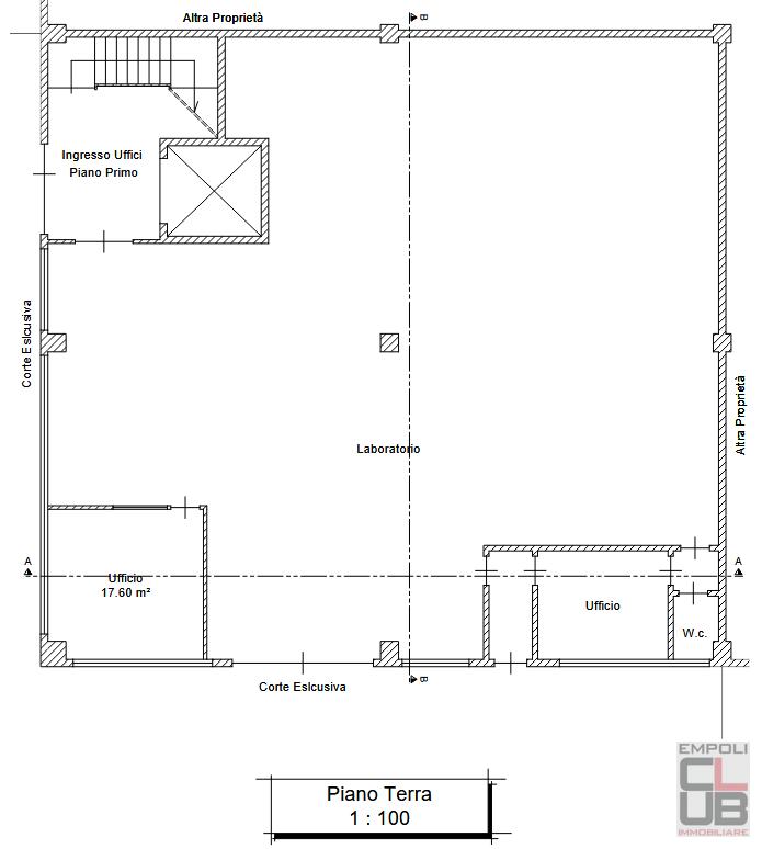
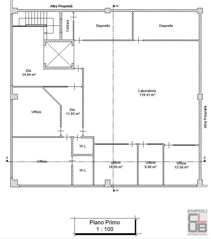
MONTELUPO FIORENTINO - RIF M/0642- BARICENTRICO TRA FIRENZE E PISA, NELLE IMMEDIATE VICINANZE DELL'USCITA FI-PI-LI, DI MONTELUPO FIORENTINO. RECENTE COSTRUZIONE. CAPANNONE COMMERCIALE ARTIGIANALE DI TOTALI MQ 720, DISPOSTO SU DUE LIVELLI COLLEGATI FRA LORO SIA DA SCALA IN MURATURA CHE DA MONTACARICHI (QUEST'ULTIMO DIMENSIONATO PER CARICHI INDUSTRIALI) CORREDATO DI RESEDE CIRCOSTANTE ANGOLARE DI MQ 250 CIRCA PER CARICO SACRICO MEZZI MEDI E PARCHEGGIO AUTO. L'OGGETTO DI ASSOLUTA BUONA QUALITA' E' COSI' DISPOSTO: AL PIANO TERRA, LOCALE OPEN SPACE DI MQ 330, DOTATO DI LOCALE UFFICIO BAGNO E SOPPALCO DI MQ 70 CIRCA. AL PIANO SUPERIORE, FRUIBILE ANCHE INDIPENDENTEMENTE, SALA D'ATTESA, SHOWROOM DI RAPPRESENTANZA, SALA RIUNIONI DIREZIONALE, QUATTRO UFFICI SEPARATI DA PARETI ATTREZZATE AD HOC CON CABLAGGIO INTERNI E BAGNO. QUESTO PIANO HA ACCESSO AUTONOMO DA MONTACARICHI E PARCHEGGIO INDIPENDENTI. OGGETTO VERSATILE, IN OTTIME CONDIZIONI, ADATTO A LAVORAZIONE/MAGAZZINO, VENDITA ALL'INGROSSO, PIU' AMMINISTRAZIONE PROPRIA. L'IMMOBILE, ESSENDO DISPOSTO SUE DUE LIVELLI HA DUE ACCESSI DIFFERENZIATI INDIPENDENTI, OFFRE COSI' ANCHE UNA FUTURA POSSIBILITA' DI VENDITA DEI DUE PIANI SEPARATAMENTE. Classe energetica G. IPE 160,00; Euro 420.000,00

Caratteristiche

Prezzo
€ 420.000 Trattabili
Contratto
Vendita
Tipologia
Capannone artigianale
Riferimento
M/0642
Superficie
720 m2
Condizioni
Ottimo
Vani
8
Piano
Più livelli
Piani totali
2
Prest. Energ. Inverno
0
Classe energetica
G
IPE: 160.00 kWh/m2a

Planimetrie

Virtual tour

Panoramiche

Video

Contatta l'agenzia

EMPOLI CLUB IMMOBILIARE
Via Roma, 77
Empoli (FI)

Rif. annuncio: M/0642

Visitato 16 volte
Salvato tra i preferiti 0 volte

Salva le ricerche per ricevere notifiche per i nuovi annunci inseriti e per quelli che hanno cambiato prezzo.

Non sei ancora registrato?

EMPOLI CLUB IMMOBILIARE
Via Roma, 77
Empoli (FI)
Mostra telefono
Salve, ho visto su *CASAIN24ORE* questo annuncio e vorrei ulteriori informazioni: https://www.casain24ore.it/1408320-0-vendita-capannone-artigianale-montelupo-fiorentino

Rif. annuncio: M/0642

50056 Montelupo Fiorentino FI, 50056
Fibbiana, Montelupo Fiorentino (FI)
Dove si trova l'immobile?

Calcola mutuo

I risultati ottenuti sono indicativi perchè calcolati sui dati inseriti.

European Removals

Traslochi nazionali e internazionali

Sopralluogo gratuito e preventivo in 24 ore

Servizio di stoccaggio

Personale qualificato

Richiedi un preventivo

Quanto vale la tua casa?

Richiedi subito una valutazione della tua casa gratuita e senza impegno!

Valuta la tua casa

EMPOLI CLUB IMMOBILIARE

Via Roma, 77, Empoli (FI)
Telefono: 0571527150 - Cellulare: 3460946240
Capannone artigianale in vendita a Fibbiana, Montelupo Fiorentino (FI)

Descrizione

MONTELUPO FIORENTINO - RIF M/0642- BARICENTRICO TRA FIRENZE E PISA, NELLE IMMEDIATE VICINANZE DELL'USCITA FI-PI-LI, DI MONTELUPO FIORENTINO. RECENTE COSTRUZIONE. CAPANNONE COMMERCIALE ARTIGIANALE DI TOTALI MQ 720, DISPOSTO SU DUE LIVELLI COLLEGATI FRA LORO SIA DA SCALA IN MURATURA CHE DA MONTACARICHI (QUEST'ULTIMO DIMENSIONATO PER CARICHI INDUSTRIALI) CORREDATO DI RESEDE CIRCOSTANTE ANGOLARE DI MQ 250 CIRCA PER CARICO SACRICO MEZZI MEDI E PARCHEGGIO AUTO. L'OGGETTO DI ASSOLUTA BUONA QUALITA' E' COSI' DISPOSTO: AL PIANO TERRA, LOCALE OPEN SPACE DI MQ 330, DOTATO DI LOCALE UFFICIO BAGNO E SOPPALCO DI MQ 70 CIRCA. AL PIANO SUPERIORE, FRUIBILE ANCHE INDIPENDENTEMENTE, SALA D'ATTESA, SHOWROOM DI RAPPRESENTANZA, SALA RIUNIONI DIREZIONALE, QUATTRO UFFICI SEPARATI DA PARETI ATTREZZATE AD HOC CON CABLAGGIO INTERNI E BAGNO. QUESTO PIANO HA ACCESSO AUTONOMO DA MONTACARICHI E PARCHEGGIO INDIPENDENTI. OGGETTO VERSATILE, IN OTTIME CONDIZIONI, ADATTO A LAVORAZIONE/MAGAZZINO, VENDITA ALL'INGROSSO, PIU' AMMINISTRAZIONE PROPRIA. L'IMMOBILE, ESSENDO DISPOSTO SUE DUE LIVELLI HA DUE ACCESSI DIFFERENZIATI INDIPENDENTI, OFFRE COSI' ANCHE UNA FUTURA POSSIBILITA' DI VENDITA DEI DUE PIANI SEPARATAMENTE. Classe energetica G. IPE 160,00; Euro 420.000,00

Dettagli

Prezzo
€ 420.000 Trattabili
Contratto
Vendita
Tipologia
Capannone artigianale
Provincia
Firenze
Comune
Montelupo Fiorentino
Frazione
Fibbiana
s
Superficie
720 mq
Condizioni
Ottimo
Vani
8
Piani totali
2