Superficie
Vani
Camere
Bagni
Descrizione
In contesto tranquillo e riservato, proponiamo in vendita una villetta indipendente libera su quattro lati, sviluppata su due livelli oltre mansarda, per una superficie complessiva di circa 240 mq. L’immobile si distingue per la sua distribuzione interna estremamente razionale e per la generosità degli spazi, con ambienti ben proporzionati, luminosi e facilmente adattabili alle diverse esigenze abitative.
La proprietà, solida nella costruzione e ben concepita fin dall’origine, si presenta oggi in condizioni tali da poter essere abitata fin da subito, pur offrendo la possibilità di interventi di ammodernamento che ne valorizzerebbero ulteriormente il potenziale, fino a trasformarla in una residenza di pregio. Un ulteriore punto di forza è rappresentato dalla struttura interna, che non richiede modifiche murarie, rendendo semplice qualsiasi progetto di personalizzazione.
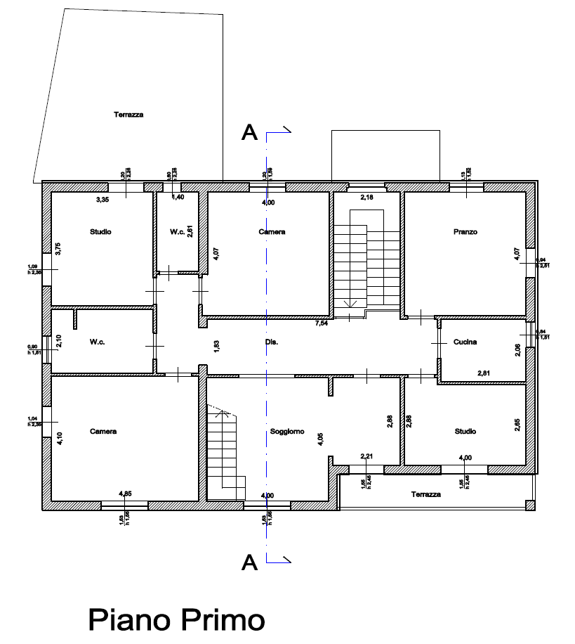
Al piano terra si sviluppa la zona giorno con un ampio ingresso/disimpegno che conduce alla cucina abitabile, al soggiorno, a una camera e a un bagno. Tramite scala interna si accede al piano superiore, dove troviamo ulteriori ambienti ben distribuiti, tra cui una seconda cucina, due camere matrimoniali, una cameretta, uno studio e un secondo servizio. La mansarda, accessibile e sfruttabile, rappresenta uno spazio aggiuntivo versatile, ideale come area hobby, studio o locale accessorio.
Esternamente la proprietà è completata da un piacevole giardino privato di circa 100 mq, riservato e vivibile, perfetto per momenti di relax all’aperto. Il garage, comodo e funzionale, è dotato di doppio accesso sia dalla viabilità principale sia direttamente dal giardino, garantendo praticità e facilità di utilizzo.
È inoltre possibile acquistare separatamente due magazzini posti al piano terra, per una superficie complessiva di circa 105 mq, soluzione particolarmente interessante per chi necessita di ampi spazi accessori o per eventuali sviluppi futuri.
Grazie alla sua ampia metratura e alla disposizione degli ambienti, l’immobile si presta perfettamente ad accogliere nuclei familiari numerosi oppure a essere suddiviso in più unità abitative, rappresentando così anche un’interessante opportunità di investimento.
Classe energetica G – IPE 160,00 - Prezzo € 258.000,00 trattabile.
Caratteristiche
- Prezzo
- € 258.000 Trattabili
- Contratto
- Vendita
- Tipologia
- Villa
- Riferimento
- G/0140
- Superficie
- 240 m2
- Condizioni
- Buono
- Vani
- 9
- Camere
- 3
- Bagni
- 2
- Posti auto
- 2
- Piano
- Più livelli
- Piani totali
- 3
- Camere doppie
- 1
- Balconi
- 2
- Riscaldamento
- Autonomo
- Condizionatore
- Sì
- Arredamento
- Non arredato
- Cucina
- Abitabile
- Sala pranzo
- Sì
- Sala
- Sì
- Studio
- Sì
- Ripostiglio
- Sì
- Mansarda
- Sì
- Giardino privato
- Sì (80 m2)
- Garage
- 1
- Prest. Energ. Inverno
- media
Classe energetica
Distanze
- Centro
- 500 m
Planimetrie
Virtual tour
Panoramiche
Video
Contatta l'agenzia
- Visitato 21 volte
- Salvato tra i preferiti 0 volte
Salva le ricerche per ricevere notifiche per i nuovi annunci inseriti e per quelli che hanno cambiato prezzo.
Non sei ancora registrato? Registrati subito!
- EMPOLI CLUB IMMOBILIARE
- Via Roma, 77
- Empoli (FI)
Rif. annuncio: G/0140
Il proprietario preferisce non mostrare l'indirizzo esatto, l'immobile più o meno si trova qui...
- Via Guglielmo Marconi, 50051
- Castelfiorentino (FI)
Calcola mutuo
I risultati ottenuti sono indicativi perchè calcolati sui dati inseriti.







