Superficie
Vani
Camere
Bagni
Descrizione
CALCINAIA– Santa Ubaldesca | APPARTAMENTO DUPLEX indipendente in Classe B con resede privato
OPEN HOUSE
Giovedi 14 Maggio 2026 - Ore 17,30- 19,30
In una delle zone residenziali più richieste e curate di Calcinaia, nel quartiere Santa Ubaldesca, proponiamo in vendita appartamento duplex di recente costruzione, caratterizzato da ingresso indipendente, ottime finiture e spazi ben distribuiti.
La posizione è strategica: contesto tranquillo, circondato da verde pubblico, con ampia disponibilità di parcheggi, vicino al nuovo polo scolastico e a pochi minuti dal centro del paese.
COMPOSIZIONE IMMOBILE
L’abitazione si sviluppa su due livelli:
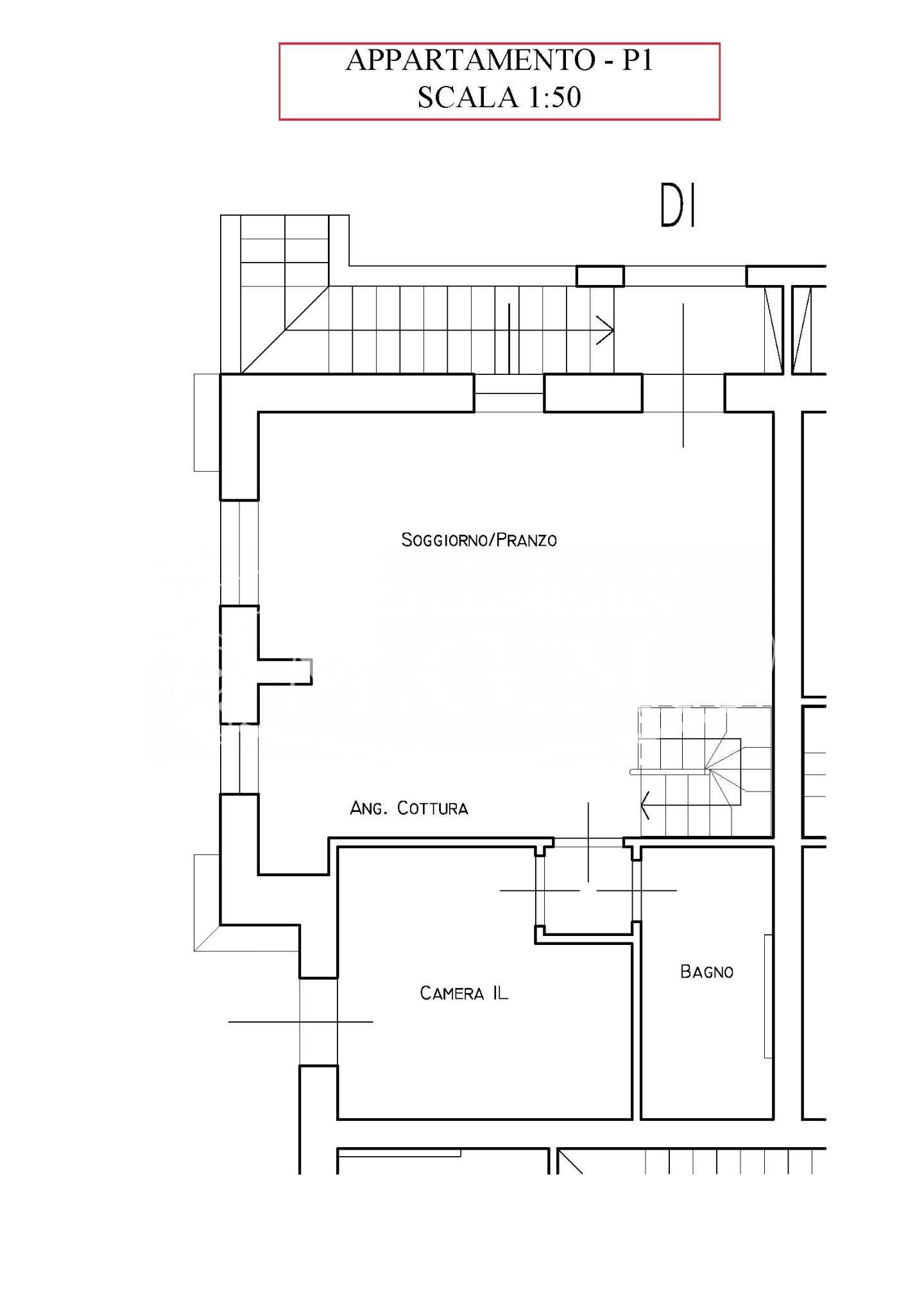
Piano Primo
• Loggiato d’ingresso
• Ampia zona living open space con soggiorno- pranzo e cucina
• Disimpegno notte
• Camera singola
• Bagno con doccia
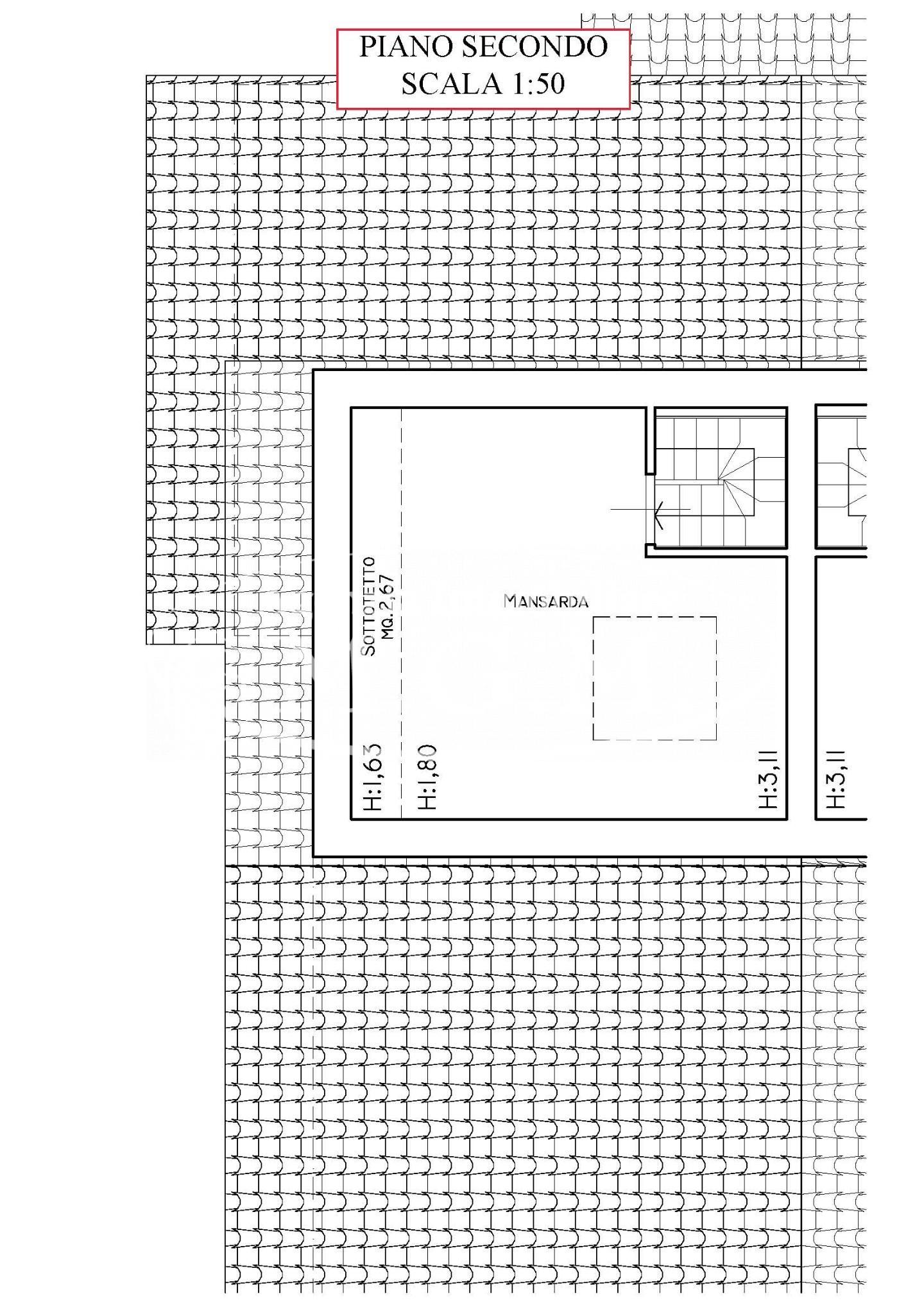
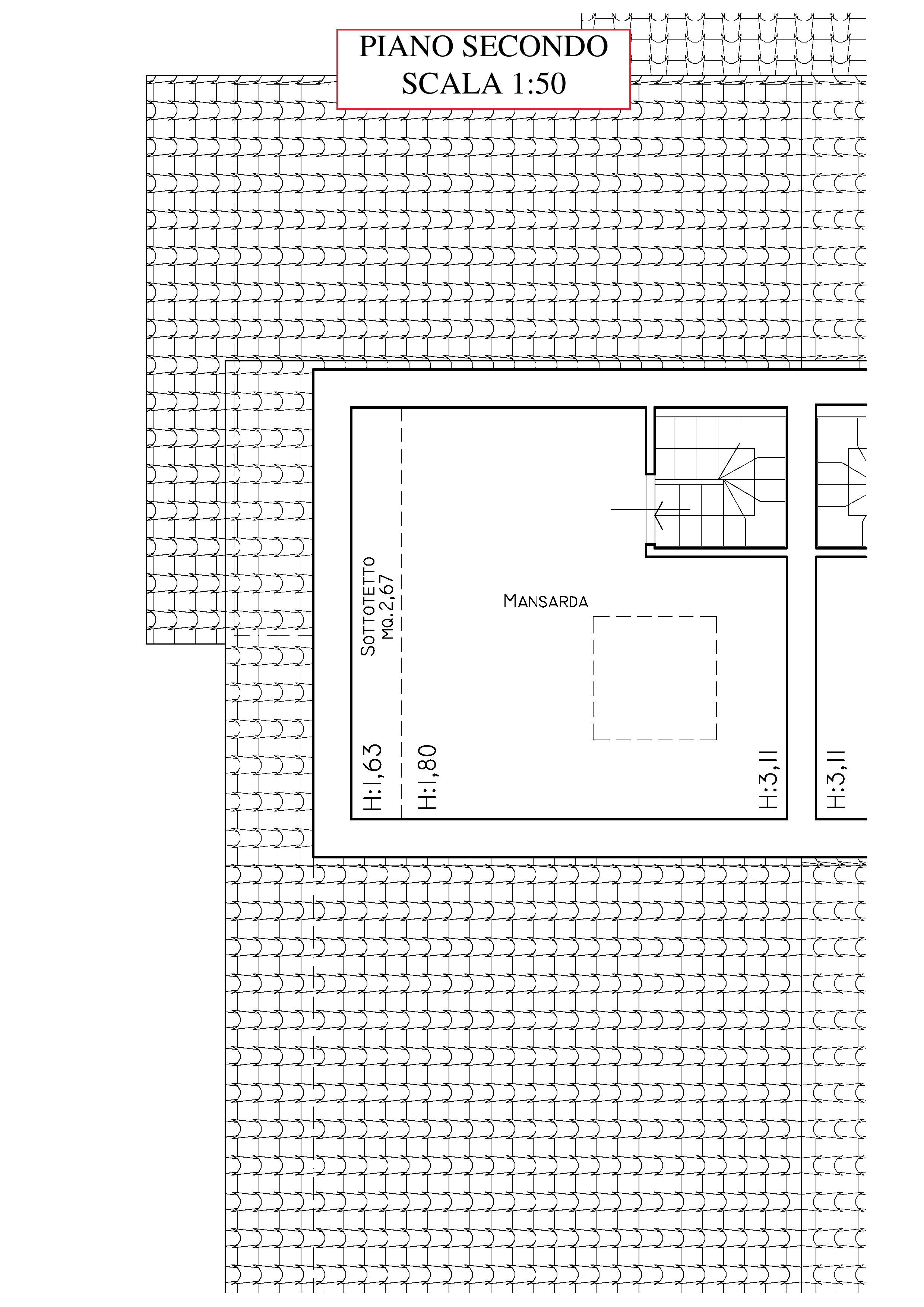
Piano Secondo (mansardato)
• Collegato tramite elegante scala d’arredo
• Grande camera matrimoniale con spazi generosi
Piano Terra
• Resede privato piastrellato
• Casina in legno ad uso ripostiglio
Completa la proprietà posto auto esclusivo in area condominiale.
CARATTERISTICHE TECNICHE – CASA GREEN
• Immobile in Classe Energetica B, ideale per chi cerca comfort e risparmio energetico
• Riscaldamento a pavimento
• Caldaia a condensazione
• Ottimo isolamento termico (doppia muratura e tetto coibentato)
• Infissi in PVC ad alta tenuta
• Predisposizione impianto fotovoltaico
DOTAZIONI INCLUSE
• L’immobile viene venduto completo di arredi e accessori:
• Cucina completa
• Zona living arredata (divano e parete attrezzata)
• Camere arredate
• Mobilio bagno
• Condizionatore
• Addolcitore
• Casina in legno esterna
UBICAZIONE IMMOBILE
La zona residenziale Santa Ubaldesca rappresenta una delle migliori aree residenziali di Calcinaia:
contesto moderno, ben urbanizzato, con piste ciclabili, aree verdi e tutti i servizi facilmente raggiungibili. Ottimo collegamento con mezzi pubblici e posizione defilata dal traffico.
FOTO & VIDEO:
Visionate sia le foto che il video dell’immobile cliccando nella sezione dedicata.
PERCHE' ACQUISTARLO:
Indipendenza e privacy
Nessun lavoro da fare
Ottima efficienza energetica
Ideale per coppie o giovani famiglie
Contesto residenziale di qualità
SOLUZIONE FINANZIARIA per ACQUISTO
Possibilità di acquisto con mutuo fino al 100%, anche con formule dedicate “green” a tassi agevolati.
Acquistare casa con una rata spesso inferiore a un affitto. Oggi è possibile.
Un’ opportunità concreta per trasformare il canone mensile in un investimento sul tuo immobile.
CASA A MENO di un AFFITTO! Adesso si PUO’!
Agevolazioni GIOVANI under 36
Se hai meno di 36 anni e un ISEE inferiore a € 40.000:
possibilità di acquisto senza anticipo
rata indicativa a partire da € 755/mese
(condizioni soggette ad approvazione dell’istituto di credito)
CO-ESCLUSIVA
Questo immobile viene proposto in CO-ESCLUSIVA dalla Agenzia Immobiliare M.G.M. –& LOTTI.
Due agenzie che collaborano tra loro per offrirvi gli immobili migliori alle migliori condizioni con servizio completo di assistenza per l’acquisto e per la vendita in modo che la compravendita venga effettuata in piena serenità senza stress e con la consapevolezza di un Buon affare!.
Devi vendere la tua casa per fare l’acquisto? – nessun problema. Parla con Noi sapremo trovare la giusta soluzione per concludere l’affare nel migliore dei modi.
Classe energetica: B - Rif. B3518
OPEN HOUSE
Giovedi 14 Maggio 2026 - Ore 17,30- 19,30
- Gradita Prenotazione - Telefonare in UFFICIO
Caratteristiche
- Prezzo
- € 209.000
- Contratto
- Vendita
- Tipologia
- Duplex
- Riferimento
- B3518
- Superficie
- 85 m2
- Condizioni
- Ottimo
- Vani
- 3
- Camere
- 2
- Bagni
- 1
- Posti auto
- 1
- Piano
- 1° (Ultimo)
- Piani totali
- 2
- Camere singole
- 1
- Balconi
- 1
- Riscaldamento
- Autonomo
- Condizionatore
- Sì
- Arredamento
- Arredato
- Cucina
- Angolo cottura
- Mansarda
- Sì (31 m2)
- Resede
- Sì (15 m2)
- Prest. Energ. Inverno
- media
Classe energetica
Distanze
- Centro
- 250 m
- Centro Commerciale
- 600 m
- Parco
- 100 m
- Stazione FS
- 3500 m
- Fermata BUS
- 100 m
- Scuole per l'infanzia
- 250 m
- Scuole Elementari
- 100 m
- Scuole Medie
- 100 m
- Mare
- 38000 m
- Piste Sci
- 50000 m
- Aeroporto
- 25000 m
Planimetrie
Video
Contatta l'agenzia
- MGM Bientina/S.Maria a Monte - Ag. Immobiliare
- Via Francesca Nord, 213/b
- Santa Maria a Monte (PI)
Rif. annuncio: B3518
- Visitato 22 volte
- Salvato tra i preferiti 0 volte
Salva le ricerche per ricevere notifiche per i nuovi annunci inseriti e per quelli che hanno cambiato prezzo.
Non sei ancora registrato? Registrati subito!
- MGM Bientina/S.Maria a Monte - Ag. Immobiliare
- Via Francesca Nord, 213/b
- Santa Maria a Monte (PI)
Rif. annuncio: B3518
Il proprietario preferisce non mostrare l'indirizzo esatto, l'immobile più o meno si trova qui...
- Calcinaia (PI)
Calcola mutuo
I risultati ottenuti sono indicativi perchè calcolati sui dati inseriti.







