Superficie
Vani
Camere
Bagni
Descrizione
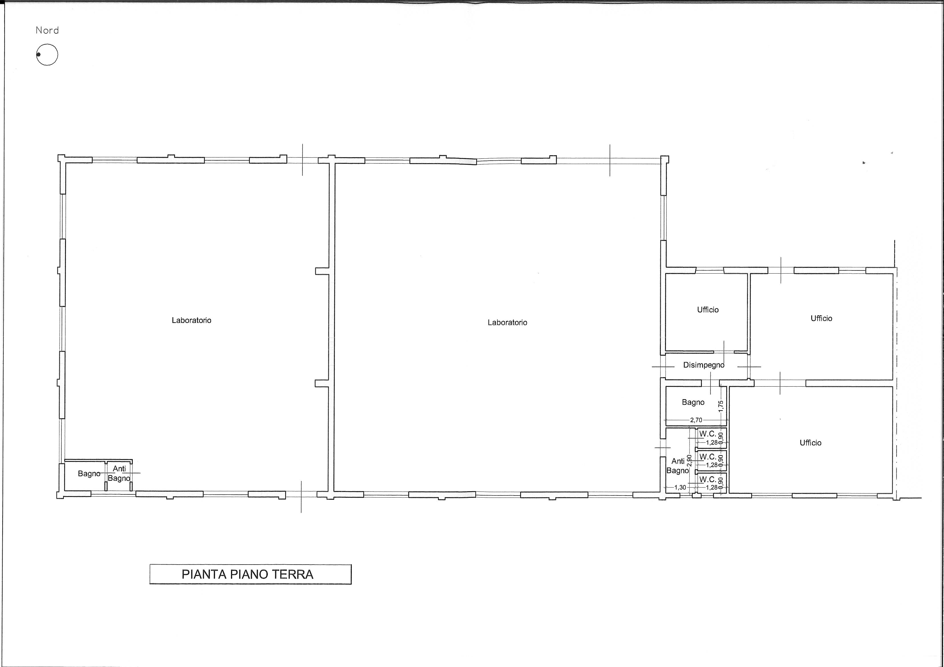
Proponiamo in affitto, in posizione strategica e facilmente accessibile, un capannone artigianale di circa 505 mq totali, completamente ristrutturato nel 2023. L’immobile, situato interamente al piano terra, si distingue per l’ottima distribuzione degli spazi e l’efficienza energetica: Area Produttiva (400 mq): Divisa in due ampi ambienti con altezza interna di 3,40 mt, ideale per laboratori artigianali, officine o stoccaggio merci.
Area Uffici (100 mq): Ambienti luminosi e moderni con altezza interna di 3,08 mt, perfetti per attività amministrative e di rappresentanza.
Accessibilità: Dotato di ben 5 accessi indipendenti, che garantiscono estrema facilità per il carico/scarico merci e la gestione dei flussi logistici.
Caratteristiche Principali: Classe Energetica B: Un valore aggiunto raro nel settore industriale, che garantisce bassi costi di gestione e sostenibilità ambientale. Stato: Immobile pari al nuovo (Ristrutturazione 2023).
Disponibilità: Libero e disponibile immediatamente.
Una soluzione eccellente per aziende che cercano uno spazio operativo moderno, efficiente e senza necessità di interventi immediati.
L'indirizzo pubblicato non corrisponde all'esatta ubicazione dell'immobile: contattateci per avere informazioni più dettagliate.
Caratteristiche
- Prezzo
- € 3.000
- Contratto
- Affitto commerciale
- Tipologia
- Capannone artigianale
- Riferimento
- 192-Caf
- Superficie
- 505 m2
- Condizioni
- Ristrutturato
- Vani
- 5
- Piano
- Piano terra
- Prest. Energ. Inverno
- bassa
Classe energetica
Planimetrie
Virtual tour
Panoramiche
Contatta l'agenzia
- Visitato 0 volte
- Salvato tra i preferiti 0 volte
Salva le ricerche per ricevere notifiche per i nuovi annunci inseriti e per quelli che hanno cambiato prezzo.
Non sei ancora registrato? Registrati subito!
- DIMENSIONE CASA Immobiliare
- Via Romana, 2360
- Lucca (LU)
Rif. annuncio: 192-Caf
Il proprietario preferisce non mostrare l'indirizzo esatto, l'immobile più o meno si trova qui...
- RJW
- Porcari (LU)







