Superficie
Vani
Camere
Bagni
Descrizione
www.abitaremediazionimmobiliari.it
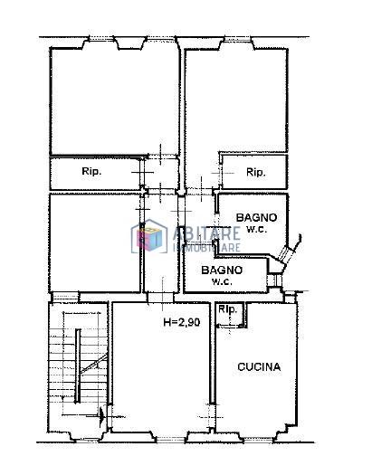
Proponiamo in vendita appartamento di 128 MQ vicino a tutti i servizi.
L'Immobile è così composto:
INGRESSO IN SOGGIORNO
CUCINA ABITABILE CON RIPOSTIGLIO
3 CAMERE
2 BAGNI CON FINESTRA
2 RIPOSTIGLI.
? Contatta per visite o informazioni aggiuntive!
Per garantire la privacy, l'indirizzo può non rispecchiare esattamente l'ubicazione dell'immobile ed è utile al solo fine di fornire un riferimento generico per la sua localizzazione ed un ausilio alla consultazione.
Disponibile virtual tour, video tour, foto, planimetria
Per Informazioni o per appuntamento per Visionare l'immobile CHIAMA IN AGENZIA al 0586 853070 o al 0586 867524,, la tua richiesta verrà gestita da un nostro agente, che ti contatterà per darti tutte le Info di cui hai bisogno
Se ti sei già innamorato di questa casa, ma temi che la vendita del tuo immobile possa essere un ostacolo, non temere!
I tempi medi di una vendita con ABITARE IMMOBILIARE sono di 45 giorni.
Portati avanti e scopri il valore della tua casa copiando https://abitaremediazionimmobiliari.it/it/valuta nella barra di ricerca
PS: Ti ricordiamo che ABITARE Immobiliare non è un’agenzia come le altre.
A differenza delle agenzie tradizionali noi non ci limitiamo solo a mostrarti le case che abbiamo a disposizione, ma vogliamo aiutarti a trovare la casa ideale, per farti risparmiare tempo e ridurre lo stress e proprio per questo, prima di farti vedere la casa, ti faremo una breve “intervista”, così potremmo capire insieme se questa sia la soluzione giusta per te!
Grazie a questo ed al nostro metodo “SELL HOUSE FAST” ti permetterà di evitare inutili giri a vuoto e, nel caso in cui la casa non rispondesse alle tue esigenze, inseriremo la tua richiesta in una lista con cui verrai avvisato con la massima priorità non appena rientrerà la casa dei tuoi sogni.
ABITARE IMMOBILIARE 7 giorni su 7 al tuo servizio per comprare o venderti casa!
Caratteristiche
- Prezzo
- € 180.000
- Contratto
- Vendita
- Tipologia
- Appartamento
- Spese mensili
- 50
- Riferimento
- IL039
- Superficie
- 128 m2
- Condizioni
- Buono
- Vani
- 5
- Camere
- 3
- Bagni
- 2
- Piano
- 2°
- Piani totali
- 3
- Camere singole
- 2
- Riscaldamento
- Autonomo
- Condizionatore
- Solo predisposizione
- Arredamento
- Non arredato
- Cucina
- Abitabile
- Sala
- Sì
- Ripostiglio
- Sì
- Prest. Energ. Inverno
- 0
Classe energetica
Planimetrie
Virtual tour
Panoramiche
Contatta l'agenzia
Rif. annuncio: IL039
- Visitato 8 volte
- Salvato tra i preferiti 0 volte
Salva le ricerche per ricevere notifiche per i nuovi annunci inseriti e per quelli che hanno cambiato prezzo.
Non sei ancora registrato? Registrati subito!
Rif. annuncio: IL039
Il proprietario preferisce non mostrare l'indirizzo esatto, l'immobile più o meno si trova qui...
- Piazza Venti Settembre,
- Piazza XX Settembre, Livorno (LI)
Calcola mutuo
I risultati ottenuti sono indicativi perchè calcolati sui dati inseriti.







