Superficie
Vani
Camere
Bagni
Descrizione
Hai mai visto un bilocale di 100 metri quadrati? Dimentica i soliti appartamenti angusti. Qui non stiamo vendendo solo una casa, ma una tela bianca dalle dimensioni straordinarie, pronta a trasformarsi nel tuo prossimo capolavoro abitativo.
Situato in una posizione strategica a Cascina, al primo piano di un edificio servito da ascensore, proponiamo un immobile unico nel suo genere. Precedentemente adibito ad ufficio, l'immobile ha già completato l'iter per il cambio di destinazione d'uso in civile abitazione, con progetto già approvato per una ridistribuzione interna moderna e funzionale.
✨ Perché scegliere questa proprietà?
Dimensioni Fuori Scala: Con 100 mq a disposizione, vivrai un'esperienza di respiro e libertà introvabile nei classici bilocali. Perfetto per chi cerca un’ampia zona living open-space o una suite padronale degna di un hotel a 5 stelle.
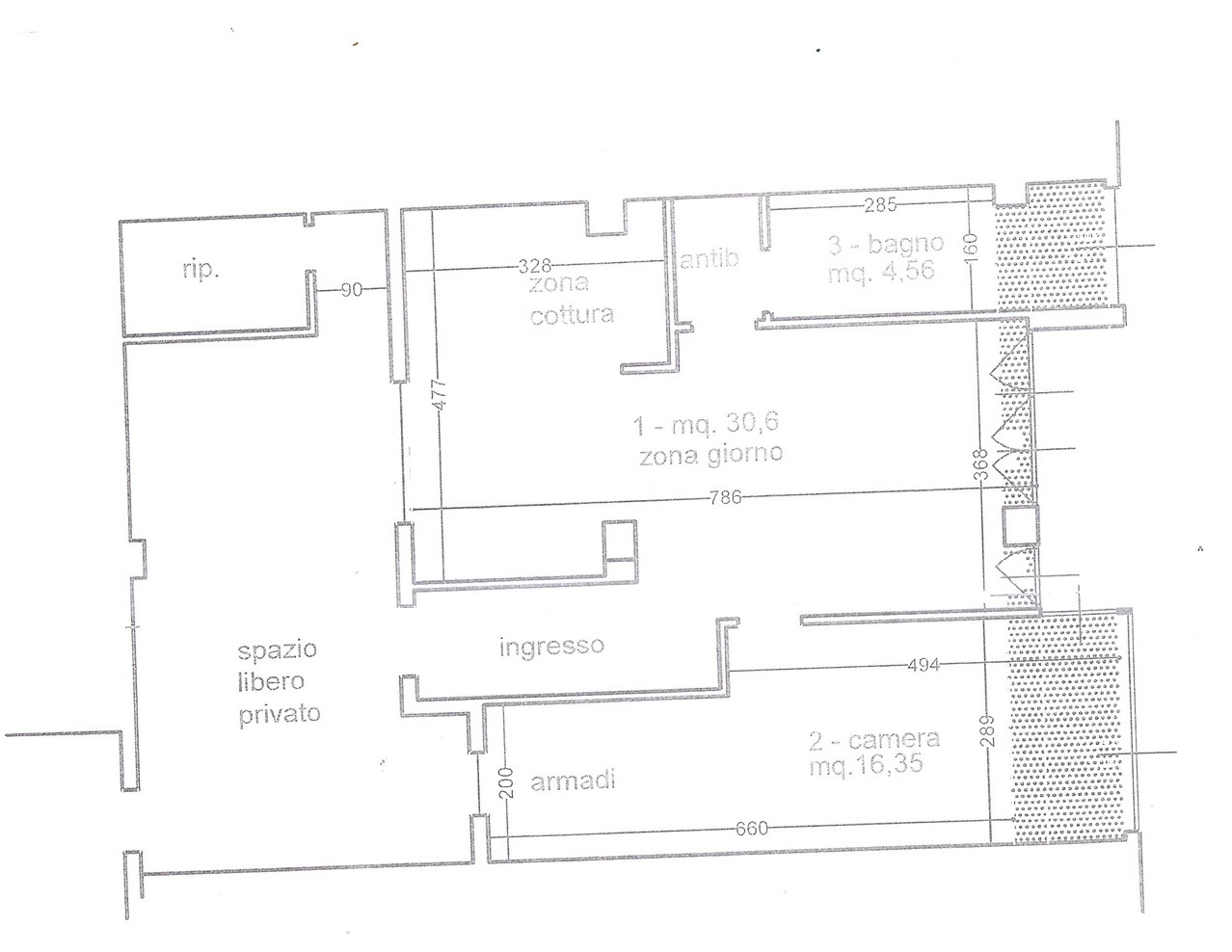
Progetto Chiavi in Mano: Non dovrai preoccuparti della burocrazia. Il progetto di divisione interna è già approvato: guarda la planimetria e inizia a immaginare i tuoi arredi!
Lo Spazio Extra che cercavi: Inclusa nel prezzo, una maxi-cantina di ben 49 mq al piano seminterrato. Un vero e proprio magazzino privato, spazio hobby o archivio.
Zero Stress Parcheggio: Posto auto riservato all'interno dell'area condominiale recintata.
? Caratteristiche Tecniche:
Superficie: 100 mq calpestabili (Appartamento) + 49 mq (Cantina).
Stato: Da personalizzare (Rimodulazione interna secondo progetto).
Piano: Primo con ascensore.
Plus: Posto auto esclusivo.
Classe Energetica: G.
? L'Opportunità di Investimento
Grazie alla metratura generosa e alla posizione, questo immobile rappresenta una scelta intelligente sia per giovani professionisti che desiderano una casa rappresentativa, sia per investitori immobiliari alla ricerca di un prodotto unico sul mercato di Cascina.
Prezzo: € 110.000
Riferimento: MA3418
Vuoi essere il primo a visitarlo?
Non lasciarti sfuggire un bilocale con le dimensioni di un quadrilocale. La disponibilità è immediata.
? Contattaci per fissare un sopralluogo.
Caratteristiche
- Prezzo
- € 110.000
- Contratto
- Vendita
- Tipologia
- Appartamento
- Riferimento
- ma3418
- Superficie
- 100 m2
- Condizioni
- Da rivedere
- Vani
- 2
- Camere
- 1
- Bagni
- 1
- Posti auto
- 1
- Piano
- 1°
- Piani totali
- 3
- Ascensore
- Sì
- Balconi
- 1
- Riscaldamento
- Autonomo
- Condizionatore
- No
- Arredamento
- Non arredato
- Cucina
- Angolo cottura
- Prest. Energ. Inverno
- bassa
Classe energetica
Planimetrie
Contatta l'agenzia
- MANNOCCI Immobiliare
- Via Toscoromagnola 2587 - Titignano
- Cascina (PI)
Rif. annuncio: ma3418
- Visitato 20 volte
- Salvato tra i preferiti 0 volte
Salva le ricerche per ricevere notifiche per i nuovi annunci inseriti e per quelli che hanno cambiato prezzo.
Non sei ancora registrato? Registrati subito!
- MANNOCCI Immobiliare
- Via Toscoromagnola 2587 - Titignano
- Cascina (PI)
Rif. annuncio: ma3418
Il proprietario preferisce non mostrare l'indirizzo esatto, l'immobile più o meno si trova qui...
- Via Tosco Romagnola,
- Cascina (PI)
Calcola mutuo
I risultati ottenuti sono indicativi perchè calcolati sui dati inseriti.







