Superficie
Vani
Camere
Bagni
Descrizione
3 Camere - Angolo Cottura in Soggiorno - 2 Bagni - Ripostiglio - Garage -
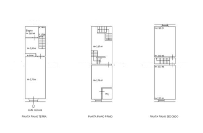
Disposto su 3 livelli -
Chiamare 3926101026 oppure 3483934479 -
All’interno di una corte ben tenuta e ben abitata, questo terratetto con ingresso indipendente e situato al piano rialzato è stato completamente ristrutturato nel 2017, offrendo tutti i comfort moderni senza rinunciare alla tradizione: soffitti in travi e travicelli e mezzane a vista caratterizzano gli ambienti. Internamente composto: piano terra con ingresso in zona giorno con angolo cottura e zona relax, disimpegno, bagno con doccia; primo piano con disimpegno, camera matrimoniale con bagno, ripostiglio; secondo piano con due camere matrimoniali e ripostiglio. Sul fronte casa, troviamo l'ampio garage con zona lavanderia e stenditoio. Nessun lavoro da fare, subito abitabile. Classe energetica: E - Rif. P4539 - Maggiori informazioni in agenzia. Si ricorda ai gentili clienti che le informazioni di questo annuncio sono indicative e non vincolanti e che per motivi di privacy l' indirizzo potrebbe essere non perfettamente corrispondente ma in luogo con caratteristiche equivalenti per servizi e posizione - Chiamare 3926101026 oppure 3483934479 - Immobiliare Il Faro, Filiale Pisa, in via Tosco Romagnola 1776, Navacchio (Cascina)
Caratteristiche
- Prezzo
- € 200.000 Trattabili
- Contratto
- Vendita
- Tipologia
- Terratetto
- Riferimento
- P4539
- Superficie
- 100 m2
- Condizioni
- Ristrutturato
- Vani
- 4
- Camere
- 3
- Bagni
- 2
- Piano
- Piano rialzato
- Piani totali
- 3
- Riscaldamento
- Autonomo
- Condizionatore
- No
- Arredamento
- Nessuno
- Cucina
- Angolo cottura
- Ripostiglio
- Sì
- Garage
- 1
- Prest. Energ. Inverno
- 0
Classe energetica
Distanze
- Centro
- 11 m
- Centro Commerciale
- 1 m
- Parco
- 1 m
- Stazione FS
- 1 m
- Fermata BUS
- 1 m
- Fermata METRO
- 1 m
- Scuole per l'infanzia
- 1 m
- Scuole Elementari
- 1 m
- Scuole Medie
- 1 m
- Mare
- 1 m
- Piste Sci
- 1 m
- Aeroporto
- 1 m
Planimetrie
Contatta l'agenzia
- IMMOBILIARE IL FARO Firenze Pisa Viareggio
- Via Tosco Romagnola, 1776
- Cascina (PI)
Rif. annuncio: P4539
- Visitato 19 volte
- Salvato tra i preferiti 0 volte
Salva le ricerche per ricevere notifiche per i nuovi annunci inseriti e per quelli che hanno cambiato prezzo.
Non sei ancora registrato? Registrati subito!
- IMMOBILIARE IL FARO Firenze Pisa Viareggio
- Via Tosco Romagnola, 1776
- Cascina (PI)
Rif. annuncio: P4539
Il proprietario preferisce non mostrare l'indirizzo esatto, l'immobile più o meno si trova qui...
- Via Renato Fucini,
- San Frediano A Settimo, Cascina (PI)
Calcola mutuo
I risultati ottenuti sono indicativi perchè calcolati sui dati inseriti.







