Quercioli, Massa (MS)

Appartamento

€ 435.000 Trattabili Esclusiva

Superficie
120 m2
Vani
4
Camere
3
Bagni
2

Descrizione

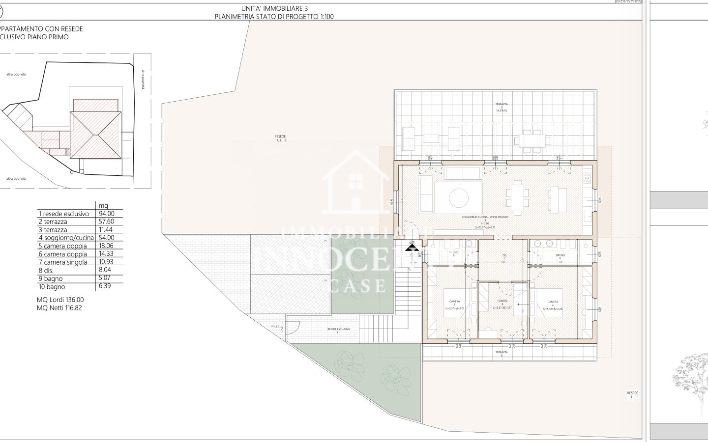
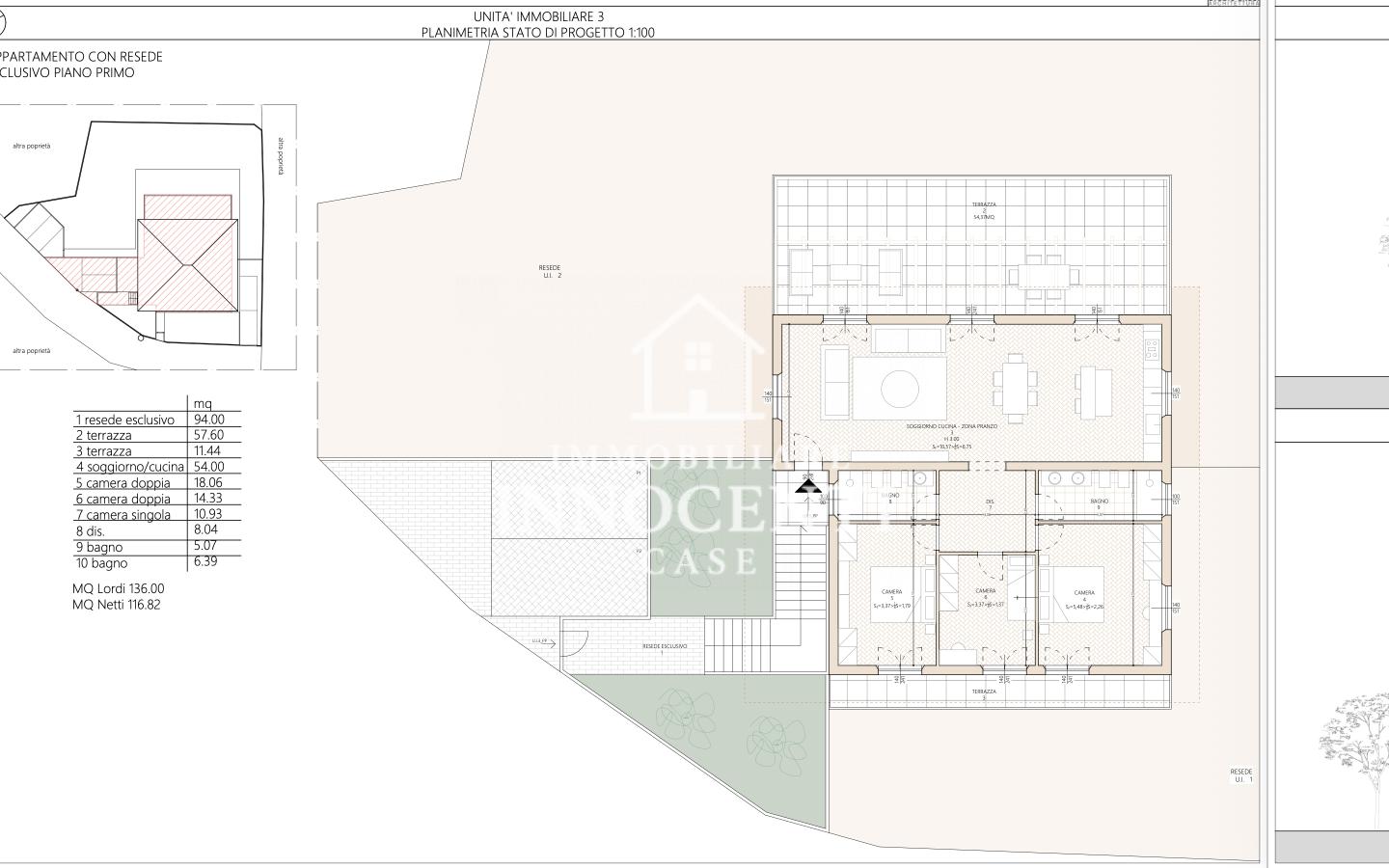
In un elegante e riservato contesto residenziale di prossima realizzazione, proponiamo in vendita un esclusivo appartamento in villa trifamiliare, attualmente in fase progettuale, con progetto già approvato e ampia possibilità di personalizzazione delle finiture grazie a un capitolato di alto livello.

L’abitazione, posta al primo ed ultimo piano, rappresenta una soluzione abitativa di rara unicità: completamente libera su quattro lati e priva di unità sovrastanti offre un’esperienza di assoluta indipendenza, privacy e una straordinaria luminosità naturale durante tutto l’arco della giornata.

L’accesso avviene tramite una scala esterna privata, che conduce direttamente all’ingresso dell’abitazione, garantendo un ingresso autonomo ed esclusivo.

Il cuore della casa è rappresentato da una splendida zona giorno di oltre 50 mq, un ambiente ampio, moderno e perfettamente studiato per coniugare comfort ed eleganza. Gli spazi, armoniosamente distribuiti tra soggiorno e cucina open space, si aprono direttamente su una magnifica terrazza di ben 54 mq: un vero e proprio prolungamento della zona living, ideale per pranzi all’aperto, momenti di relax o per accogliere ospiti in un’atmosfera raffinata.

La zona notte, ben disimpegnata, si compone di:
• Tre camere da letto, versatili e luminose, perfette per famiglie o per chi desidera uno spazio dedicato allo studio o al lavoro
• Due bagni, progettati con attenzione al comfort e alla funzionalità
• Un ulteriore balcone, che arricchisce e valorizza gli spazi esterni

Completano la proprietà due posti auto privati ad uso esclusivo.

L’immobile sarà realizzato secondo i più avanzati standard costruttivi, con particolare attenzione all’efficienza energetica e al benessere abitativo. Sarà dotato di:
• Riscaldamento a pavimento
• Impianto di climatizzazione con condizionatori
• Elevata classe energetica, per garantire consumi ridotti e massimo comfort

L’ottima esposizione assicura ambienti sempre luminosi, caldi e accoglienti, esaltando ogni spazio e rendendo l’abitazione estremamente vivibile in ogni stagione.

Una proposta ideale per chi è alla ricerca di una casa nuova, moderna, indipendente e completamente personalizzabile, inserita in un contesto tranquillo e signorile, senza rinunciare ad ampi spazi e a una perfetta continuità tra interno ed esterno.

Ulteriori informazioni, planimetrie e dettagli sul capitolato disponibili su richiesta.


Caratteristiche

Prezzo
€ 435.000 Trattabili
Contratto
Vendita
Tipologia
Appartamento
Riferimento
GINEVRA
Superficie
120 m2
Condizioni
Nuovo/in costruzione
Vani
4
Camere
3
Bagni
2
Posti auto
2
Piano
1° (Ultimo)
Piani totali
1
Camere singole
1
Terrazzi
1
Balconi
1
Riscaldamento
Autonomo
Condizionatore
Arredamento
Non arredato
Cucina
Soggiorno - cucina
Giardino privato
Sì (94 m2)
Fotovoltaico
Pannelli solari
Prest. Energ. Inverno
0
Classe energetica
In attesa di certificazione
IPE: Non disponibile
  • Ingresso indipendente
  • Videocitofono
  • Allarme
  • Porta blindata

Contatta l'agenzia

Innocenti Case Immobiliare
Piazza Aranci, 39
Massa (MS)

Rif. annuncio: GINEVRA

Visitato 3 volte
Salvato tra i preferiti 0 volte

Salva le ricerche per ricevere notifiche per i nuovi annunci inseriti e per quelli che hanno cambiato prezzo.

Non sei ancora registrato?

Innocenti Case Immobiliare
Piazza Aranci, 39
Massa (MS)
Mostra telefono
Salve, ho visto su *CASAIN24ORE* questo annuncio e vorrei ulteriori informazioni: https://www.casain24ore.it/1406355-0-vendita-appartamento-massa

Rif. annuncio: GINEVRA

Via Quercioli
Quercioli, Massa (MS)
Dove si trova l'immobile?

Calcola mutuo

I risultati ottenuti sono indicativi perchè calcolati sui dati inseriti.

European Removals

Traslochi nazionali e internazionali

Sopralluogo gratuito e preventivo in 24 ore

Servizio di stoccaggio

Personale qualificato

Richiedi un preventivo

Quanto vale la tua casa?

Richiedi subito una valutazione della tua casa gratuita e senza impegno!

Valuta la tua casa

Innocenti Case Immobiliare

Piazza Aranci, 39, Massa (MS)
Telefono: 3277945602 - Cellulare: 3277945602
Appartamento in vendita a Quercioli, Massa (MS)

Descrizione

In un elegante e riservato contesto residenziale di prossima realizzazione, proponiamo in vendita un esclusivo appartamento in villa trifamiliare, attualmente in fase progettuale, con progetto già approvato e ampia possibilità di personalizzazione delle finiture grazie a un capitolato di alto livello. L’abitazione, posta al primo ed ultimo piano, rappresenta una soluzione abitativa di rara unicità: completamente libera su quattro lati e priva di unità sovrastanti offre un’esperienza di assoluta indipendenza, privacy e una straordinaria luminosità naturale durante tutto l’arco della giornata. L’accesso avviene tramite una scala esterna privata, che conduce direttamente all’ingresso dell’abitazione, garantendo un ingresso autonomo ed esclusivo. Il cuore della casa è rappresentato da una splendida zona giorno di oltre 50 mq, un ambiente ampio, moderno e perfettamente studiato per coniugare comfort ed eleganza. Gli spazi, armoniosamente distribuiti tra soggiorno e cucina open space, si aprono direttamente su una magnifica terrazza di ben 54 mq: un vero e proprio prolungamento della zona living, ideale per pranzi all’aperto, momenti di relax o per accogliere ospiti in un’atmosfera raffinata. La zona notte, ben disimpegnata, si compone di: • Tre camere da letto, versatili e luminose, perfette per famiglie o per chi desidera uno spazio dedicato allo studio o al lavoro • Due bagni, progettati con attenzione al comfort e alla funzionalità • Un ulteriore balcone, che arricchisce e valorizza gli spazi esterni Completano la proprietà due posti auto privati ad uso esclusivo. L’immobile sarà realizzato secondo i più avanzati standard costruttivi, con particolare attenzione all’efficienza energetica e al benessere abitativo. Sarà dotato di: • Riscaldamento a pavimento • Impianto di climatizzazione con condizionatori • Elevata classe energetica, per garantire consumi ridotti e massimo comfort L’ottima esposizione assicura ambienti sempre luminosi, caldi e accoglienti, esaltando ogni spazio e rendendo l’abitazione estremamente vivibile in ogni stagione. Una proposta ideale per chi è alla ricerca di una casa nuova, moderna, indipendente e completamente personalizzabile, inserita in un contesto tranquillo e signorile, senza rinunciare ad ampi spazi e a una perfetta continuità tra interno ed esterno. Ulteriori informazioni, planimetrie e dettagli sul capitolato disponibili su richiesta.

Dettagli

Prezzo
€ 435.000 Trattabili
Contratto
Vendita
Tipologia
Appartamento
Provincia
Massa-Carrara
Comune
Massa
Frazione
Quercioli
s
Superficie
120 mq
Condizioni
Nuovo/in costruzione
Vani
4
Camere
3
Bagni
2
Posti auto
2
Piano
1° (Ultimo)
Piani totali
1