Superficie
Vani
Camere
Bagni
Descrizione
ESCLUSIVA VILLETTA di Nuova Costruzione di mq. 125 corredata da Loggiato oltre Grande Giardino di mq. 230 ca.. Alta qualità costruttiva in Classe A con rifiniture in stile tipico toscano e impianti di ultima generazione, in Vendita a PONTEDERA nella nuova zona residenziale di SANTA LUCIA.
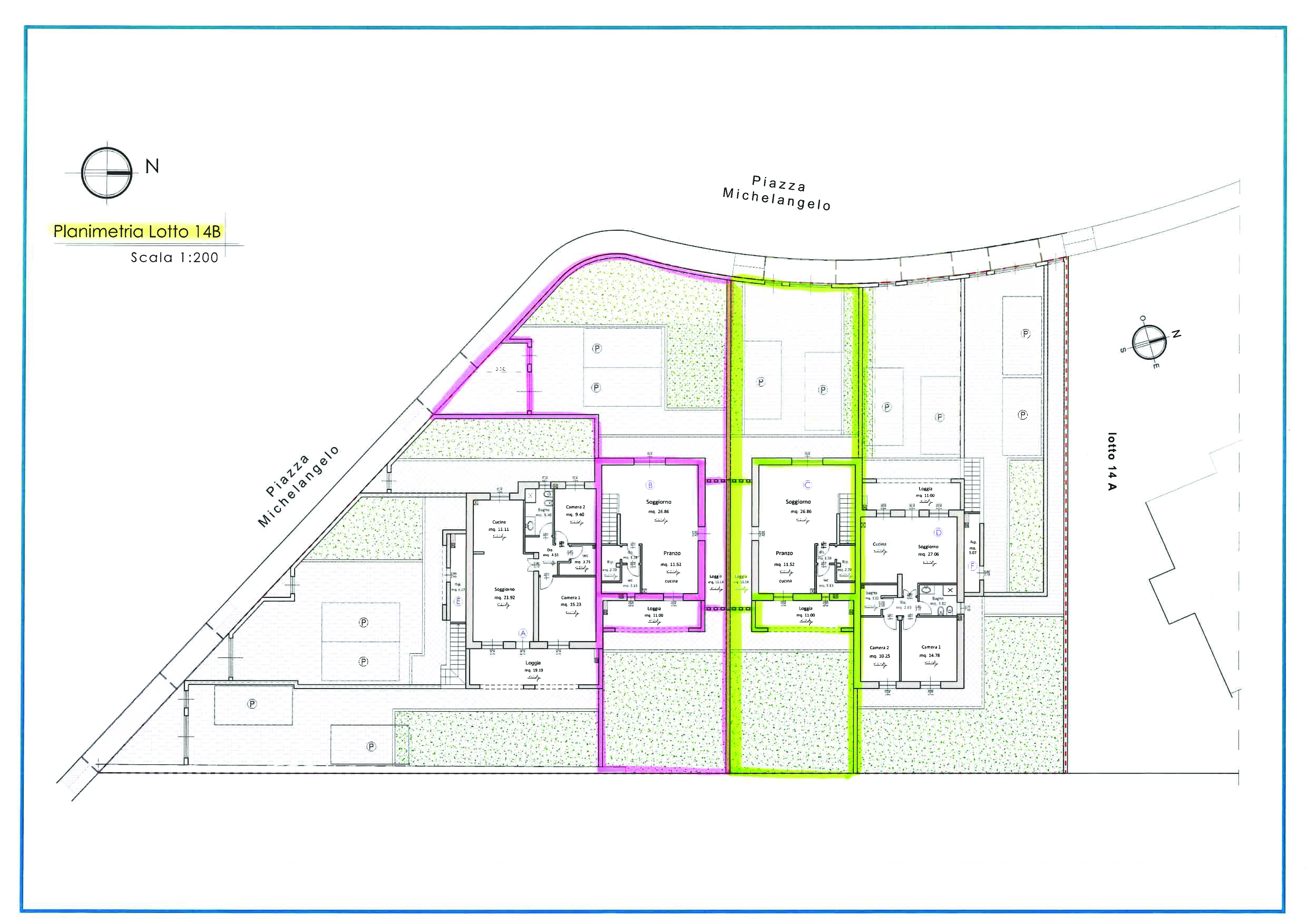
La Casa, disposta su due Piani, si compone al Piano Terra da ingresso con loggia, soggiorno, ampia cucina abitabile con ulteriore loggiato abitabile aperto sul giardino dove poter cenare e rilassarsi in tranquillità, comodo e funzionale ripostiglio/lavanderia e bagno. Al Piano Primo si trova il reparto notte composto dal disimpegno, camera matrimoniale padronale con Loggia, camera media, cameretta e bagno.
Il Grande GIARDINO ben sfruttabile ha una superficie di Mq. 230 ca., oltre alla zona esclusiva adibita a Posti Auto Privati esterna.
Oggetto Unico e particolare, ben esposta, posizione tranquilla e riservata. - PRONTA CONSEGNA!!
DOTAZIONI: Capitolato con riscaldamento a pavimento, sistema di riscaldamento di ultima generazione con pompa di calore e impianto fotovoltaico, predisposizione impianto di climatizzatore, allarme, addolcitore, persiane alluminio, infissi interni in pvc.
IL SISTEMA A POMPA DI CALORE, permette di non allacciare le abitazioni alla rete del Gas Metano. La Pompa di Calore, associata all’Impianto Fotovoltaico, è un sistema avanzato dal punto di vista dell’eco-sostenibilità, in grado di produrre acqua calda sanitaria e grazie all’impianto radiante a pavimento garantisce il riscaldamento in inverno, conferendo il massimo comfort abitativo con un ingente risparmio sui consumi.
Contattaci per una visita in CANTIERE.
Agenzia Immobiliare LOTTI - Bientina - Via Polidori n. 23
349 - 2334573 Lorenzo
0587 - 756269 Ufficio
PONTEDERA - Santa Lucia
Villetta a schiera in vendita - 6 vani - 125 mq -
disposta su 2 piani - composto da 3 camere e 2 bagni
grande giardino e loggiato.
Classe energetica: A4 - Rif. 909-B
Caratteristiche
- Prezzo
- € 390.000
- Contratto
- Vendita
- Tipologia
- Villetta a schiera
- Riferimento
- 909-B
- Superficie
- 125 m2
- Condizioni
- Nuovo/in costruzione
- Vani
- 6
- Camere
- 3
- Bagni
- 2
- Posti auto
- 2
- Piano
- Più livelli
- Piani totali
- 2
- Camere singole
- 2
- Riscaldamento
- Autonomo
- Condizionatore
- No
- Arredamento
- Non arredato
- Cucina
- Abitabile
- Ripostiglio
- Sì
- Giardino privato
- Sì (235 m2)
- Fotovoltaico
- Sì (2.00 m2)
- Prest. Energ. Inverno
- 0
Classe energetica
Planimetrie
Contatta l'agenzia
- Visitato 840 volte
- Salvato tra i preferiti 0 volte
Salva le ricerche per ricevere notifiche per i nuovi annunci inseriti e per quelli che hanno cambiato prezzo.
Non sei ancora registrato? Registrati subito!
- LOTTI Agenzia Immobiliare
- Via Polidori, 23
- Bientina (PI)
Rif. annuncio: 909-B
Il proprietario preferisce non mostrare l'indirizzo esatto, l'immobile più o meno si trova qui...
- Via Luigi Pirandello, 18
- Santa Lucia, Pontedera (PI)
Calcola mutuo
I risultati ottenuti sono indicativi perchè calcolati sui dati inseriti.







